Flat for sale 4+1 • 105 m² without real estateGregor-Fuchs-Straße 38 Leipzig Anger-Crottendorf Sachsen 04318
Charming 4-Room Maisonette Apartment with Balcony in Leipzig-Anger-Crottendorf
In a lovingly renovated, listed multi-family building from the 19th century, an attractive condominium awaits you in the popular Leipzig district of Anger-Crottendorf with approximately 84 m² of living space. The apartment is located on the 4th floor of a well-maintained historic building that underwent a comprehensive core renovation in 1996.
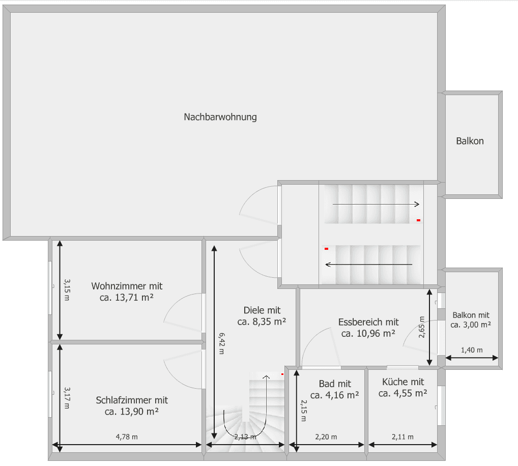
The bright 4-room maisonette apartment offers plenty of space for couples or families seeking a cozy home with historical charm. The living area is spread over four well-proportioned rooms, a separate kitchen, and a well-maintained bathroom. All rooms are easily accessible from the hallway, ensuring a pleasant and practical living layout.
The heart of the apartment is the open living and dining area with access to the balcony. This creates a particularly homely atmosphere – ideal for spending quality time with family and friends. The balcony, facing the quiet courtyard, invites you to relax and offers a pleasant retreat from everyday life.
The bathroom is well-kept and equipped with a bathtub, sink, toilet, and a towel radiator. The separate kitchen provides ample space for cooking and everyday family life.
Additional storage is provided by a storage room on the half-landings as well as a private basement compartment, both of which complement this interesting property effectively.
The apartment is currently rented, making it an attractive opportunity for capital investors. The current net cold rent amounts to €6,600 per year. In addition, there is potential for future value and yield increases. The property is occupied by a quiet and reliable tenant community that takes excellent care of the building.
The apartment features solid, well-maintained fittings and has been rented since 2017.
The Leipzig district of Anger-Crottendorf is very well connected to the surrounding infrastructure (S-Bahn (MDV), tram, bus).
All supply facilities are within easy walking distance (including supermarkets, government offices, schools, daycares, and doctors).
Due to its proximity to the adjacent Stünzer Park, the residential area is very popular.
Commission-free for the buyer
The property is marketed on behalf of our client. As a buyer, you do not incur any broker commissions.
Your Contact Person
Frank Stabler
Real Estate Agent
Expert for the valuation of developed and undeveloped properties
(certified according to DIN ISO 17024 / PersCert)
Kurze Straße 4
04683 Naunhof
A viewing appointment for the property can be arranged in consultation, among other things, with the current tenants.
Disclaimer:
All information and prices are non-binding and subject to change. Errors or prior sale remain reserved. This offer has been prepared based on the documents provided by the owner and the owner’s statements, without guarantee.
A legal claim to a purchase contract only arises after counter-signature by the owner.
Property characteristics
| Age | Over 5050 years |
|---|---|
| Layout | 4+1 |
| Listing ID | 1000643 |
| Price per unit | €2,657 / m2 |
| Condition | After reconstruction |
|---|---|
| Floor | 4. floor out of 2 |
| Usable area | 105 m² |
What does this listing have to offer?
| Balcony | |
| MHD 0 minutes on foot |
| Basement |
What you will find nearby
Still looking for the right one?
Set up a watchdog. You will receive a summary of your customized offers 1 time a day by email. With the Premium profile, you have 5 watchdogs at your fingertips and when something comes up, they notify you immediately.


















