House for sale 5+1 • 127 m² without real estate, Lower Saxony
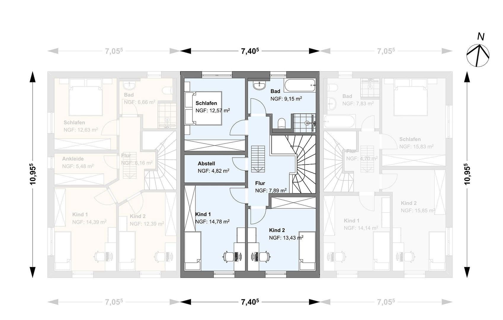
, Lower SaxonyPublic transport 1 minute of walking • ParkingThis charming terraced house impresses with its spacious layout and attractive location. It features two full floors built in solid construction as well as an undeveloped attic offering versatile possibilities – whether as additional living space, a hobby room, or storage. The end-of-row house provides, on the ground floor, a generously sized living-dining area with kitchen, a utility room, an office/guest room or additional bedroom, a guest WC with shower, and an entrance hall with a wardrobe. On the upper floor there are three bedrooms, a storage room, and a daylight bathroom. The house is equipped with comfortable underfloor heating, distributing a pleasant warmth, as well as electric shutters that ensure security and privacy.
On an attractive plot of land totaling 753 m², three modern terraced houses (East, Center, and West) are being constructed and are still available. If you are interested in an end-of-row house (West or East), please feel free to contact us. The plot remains as one unit, but each house will receive its own special usage rights for terrace, garden, and parking space. A common district heating transfer station ensures efficient energy supply. The southern exposure provides plenty of sunlight and a pleasant atmosphere in the outdoor area. Currently, the floor plans and the fittings can be designed flexibly. All houses offer flexible floor plans that can be tailored to your wishes. It is even conceivable to create two residential units within one house, in order to optimize costs or accommodate multiple generations.
This property offers an ideal combination of living comfort, flexibility, and a sunny location – perfect for families or couples looking for a home with potential. You are not simply acquiring a house here, but an architecturally well-thought-out home that has been planned with expertise, built by regional craftsmen, and professionally supervised by an architecture firm – ensuring the highest quality, transparency, and long-term security.
The new development area "Luhbach Auen" is located south of Kampweg in Rosdorf, an attractive community noted for its calm and family-friendly atmosphere. The location offers a perfect balance between nature and proximity to the city. Shopping facilities, schools, kindergartens, and medical care are conveniently reachable. The area also has excellent transport links, making the journey to the nearby town of Göttingen easier. This makes Rosdorf an ideal location for families looking for a quiet home while still enjoying access to urban amenities. The combination of nature, good infrastructure, and a friendly neighborhood makes Rosdorf so popular. Here you will find a home in a quiet yet well-connected location.
Thanks to fiber optics in the new development area, a 1 Gigabit home connection is possible. The offer price includes, among other things, the share of the property, a car parking space, a photovoltaic system, the paving of the access road, as well as house connections such as electricity, water, district heating, and telecommunications. The building is supplied with district heating from Biogas Göttingen GmbH.
Financing advantages through the KfW efficiency house standard:
The building conforms to the energy-efficient construction standard Effizienzhaus 55, enabling access to low-interest KfW promotional loans. Currently, promotional loans are partly available at around 1% interest per annum – a considerable advantage compared to usual construction financing. Take advantage of this opportunity for a long-term, competitive financing arrangement.
Further information is available directly from the seller.
You will incur NO broker or commission fees.
We look forward to your inquiry. Please understand that only inquiries with full name, telephone number, and email address will be responded to. Naturally, these contact details will be treated confidentially and not passed on.
We kindly request that broker inquiries be omitted.
Property characteristics
| Age | Over 5050 years |
|---|---|
| Condition | New-build |
| Listing ID | 1000390 |
| Land space | 753 m² |
| Price per unit | €4,087 / m2 |
| Available from | 01/06/2027 |
|---|---|
| Layout | 5+1 |
| Usable area | 127 m² |
| Total floors | 2 |
What does this listing have to offer?
| Parking | |
| Terrace |
| MHD 1 minute on foot |
What you will find nearby
Still looking for the right one?
Set up a watchdog. You will receive a summary of your customized offers 1 time a day by email. With the Premium profile, you have 5 watchdogs at your fingertips and when something comes up, they notify you immediately.











