
Flat to rent 2 bedroom • 57 m² without real estateGerresheimer Straße 104, , North Rhine-Westphalia
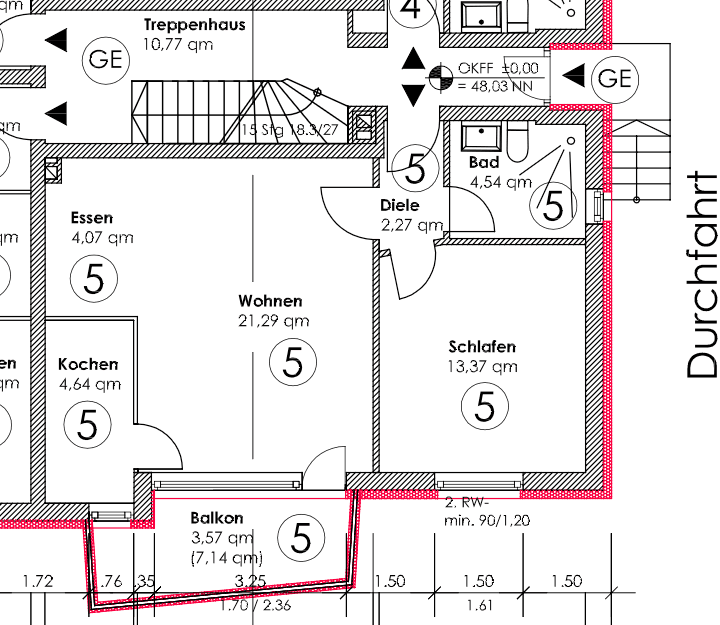
Gerresheimer Straße 104, , North Rhine-WestphaliaPublic transport less than a minute of walking • ParkingThe offered apartment No. 5 impresses with a practical and highly usable floor plan featuring a pleasant room layout. It boasts a spacious living room of approximately 21.29 m², providing ample space for living and dining, and serving as the central focal point of the apartment. From here, there is also access to the balcony, which adds about 3.57 m² of extra outdoor space for everyday life.
The apartment is complemented by a well-designed bedroom of about 13.37 m², which is ideal as a quiet retreat. The separate kitchen of approximately 4.64 m² is functionally arranged and offers short distances. An adjacent dining area of around 4.07 m² provides extra space for a small dining table or a practical extension of the living area.
The bathroom, measuring about 4.54 m², is compact and functionally designed. All rooms are easily accessible via the hallways, creating a pleasant and practical living structure.
Overall, this is a bright and well-proportioned apartment, particularly suitable for singles or couples. The balcony, as well as the clear separation of the living, bedroom, and kitchen areas, underscore the attractive layout.
Note:
Further photos of the apartment are unfortunately not available at the moment, as it is currently still rented. Before moving in, the apartment can be handed over renovated; alternatively, you have the option of carrying out the renovation yourself. The details can be discussed individually.
Requested residential location in the northern part of Hilden
Good connection to the A3, A46, and A59 motorways
S-Bahn S1 in Hilden with quick connections to Düsseldorf, Solingen, and Dortmund
Düsseldorf Hbf in approximately 14 minutes, Düsseldorf Airport in about 27 minutes by S-Bahn
Bus connections available in the Gerresheimer Straße school center area
Good local supply and shopping opportunities in the city
Hilden city center with pedestrian zone, retail, and gastronomy
Weekly markets in the city center and northern part of the city
Several secondary schools in the immediate vicinity
Good pedestrian and cycling paths
Music school and other cultural facilities in Hilden
Recreational opportunities provided by the city forest and various leisure activities in the urban area
An attractive location for commuters, families, and anyone who appreciates short distances
Property characteristics
| Available from | 15/04/2026 |
|---|---|
| Layout | 2 bedroom |
| Usable area | 57 m² |
| Condition | Good |
|---|---|
| Listing ID | 1000299 |
| Price per unit | €11 / m2 |
What does this listing have to offer?
| Balcony | |
| MHD 0 minutes on foot |
| Parking |
What you will find nearby
Still looking for the right one?
Set up a watchdog. You will receive a summary of your customized offers 1 time a day by email. With the Premium profile, you have 5 watchdogs at your fingertips and when something comes up, they notify you immediately.





