
Flat to rent 4+1 • 151 m² without real estateWestliche Stadtmauerstraße 64 Erlangen Erlangen Bayern 91054
Westliche Stadtmauerstraße 64 Erlangen Erlangen Bayern 91054Public transport 2 minutes of walkingThis extraordinary, freshly renovated loft apartment on the top floor offers over 130 m² of living space with a spacious, light-filled atmosphere in the central location of Erlangen. The heart of the apartment is the open living and dining area, from which the other rooms, as well as the impressive roof terrace of approximately 42 m², are accessible. From here, you can enjoy a beautiful view over Erlangen and an ideal spot to relax above the city’s rooftops.
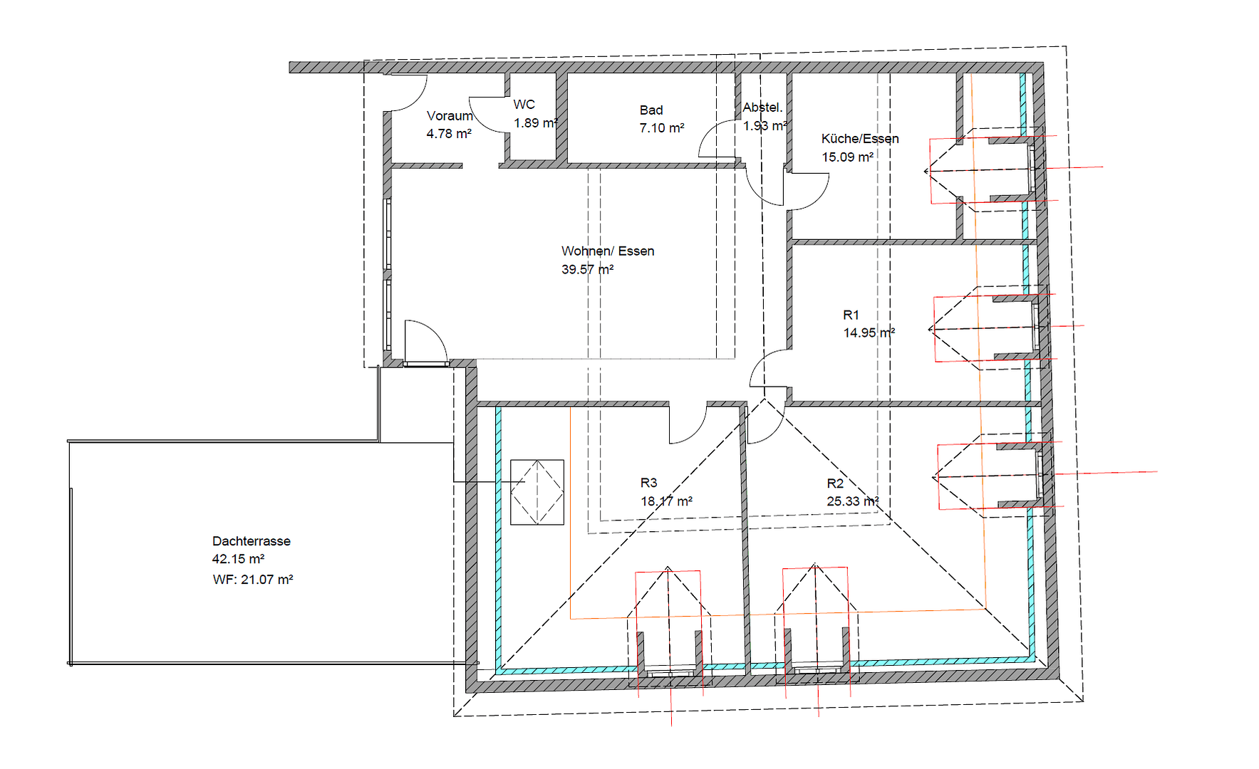
The apartment features four rooms and impresses with its unique character: exposed wooden beams in nearly every room give the loft a distinctive charm and enhance the open, airy feel. The bathroom is equipped with both a bathtub and a shower, and there is also a separate guest WC in the entrance area.
A fitted kitchen is already in place and is included in the rent. The central heating was renewed in 2023, ensuring modern warmth.
**The roof terrace’s surface will be renewed. Until its completion, the use of the terrace is limited, which is why the rent is temporarily reduced by €200 (currently €1,950 instead of €2,150).**
Here you’ll be living right in the heart of Erlangen’s center. The main street is the historic spine of the old town and is now largely a pedestrian zone with numerous shops, cafés, and restaurants—it leads over the market square and palace square, with the palace garden only a few steps away. It’s about a 10-minute walk to the main train station, ensuring excellent public transport connections. In short: urban, vibrant, and yet with plenty of greenery just around the corner.
Amenities include:
- Roof terrace of over 40 m²
- Bright, open floor plan with high ceilings
- Fitted kitchen
- Separate guest WC in the entrance
- Washing machine connection within the apartment
Property characteristics
| Age | Over 5050 years |
|---|---|
| Condition | After reconstruction |
| Floor | 4. floor out of 1 |
| Usable area | 151 m² |
| Available from | 12/03/2026 |
|---|---|
| Layout | 4+1 |
| Listing ID | 1000058 |
| Price per unit | €13 / m2 |
What does this listing have to offer?
| Balcony | |
| Terrace |
| MHD 2 minutes on foot |
What you will find nearby
Still looking for the right one?
Set up a watchdog. You will receive a summary of your customized offers 1 time a day by email. With the Premium profile, you have 5 watchdogs at your fingertips and when something comes up, they notify you immediately.

























