
Flat for sale 4+1 • 100 m² without real estateIm Ganggarten 2a, , Rhineland-Palatinate
Im Ganggarten 2a, , Rhineland-PalatinatePublic transport 2 minutes of walkingThe condominium, built in 2004 in a well-maintained multi-family house, combines an open, spacious layout with compact efficiency. The excellent design of the four rooms allows for flexible use—ideal for families or for combining living and working from a home office. A particularly noteworthy feature is the exceptionally bright ambiance: floor-to-ceiling, double-winged windows ensure ample daylight and create a welcoming atmosphere. A south-facing balcony further extends the living space outdoors.
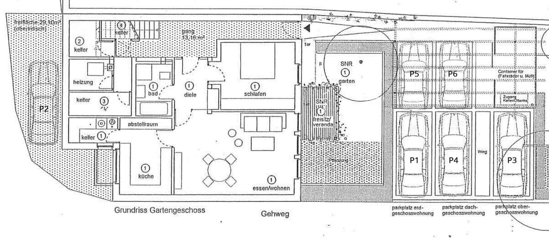
The property is in very good condition and offers additional storage through its own basement room. Up to two parking spaces directly on the premises can be purchased as an option.
The apartment includes features that support comfortable living well into old age, making the property somewhat senior-friendly:
Accessibility: The unit is nearly ground-level accessible. Although the property is not completely threshold-free, the slight differences in height in the entrance area significantly ease daily life. One of the two bathrooms features a threshold-free shower, which greatly enhances convenience and safety in the bathroom.
The property is located in a quiet residential area in a traditional Moselle village with full infrastructure.
Connectivity: The city of Trier can be reached in less than 20 minutes. The location also provides excellent commuting options for those traveling to Luxembourg.
Local amenities: An elementary school, a kindergarten, as well as shops for daily needs and dining options, are available right on site.
Surroundings: The environment is characterized by a quiet residential setting near the vineyards, yet still offers the advantages of rapid access to regional centers.
The technical features of the apartment are designed for comfort and long-term usability:
Future-Proof Energy Concept:
The property is already prepared for future energy requirements. Thanks to the existing underfloor heating system and a designated spot for a heat pump, switching to renewable energy sources is technically straightforward. Heating is currently provided by oil.
Comfort: All windows are equipped with electric shutters. Water and electricity costs are billed separately for each unit.
Plumbing: The apartment has two fully equipped bathrooms—one with a shower and a separate bathtub bathroom.
Kitchen: The built-in kitchen is the tenant’s property and is therefore not part of the sale.
Owner-Occupancy & Planning: The apartment is currently rented out. For owner-occupiers, there is a legal notice period of nine months. This period provides buyers with a reliable planning basis for moving in, while the ongoing rental income helps cover the costs during the transition.
Terms: The purchase price is €295,000 plus the optional parking spaces.
Expansion Option: Another living unit in the same building is also currently for sale. This offers interesting prospects for multi-generational models or a combined use of owner-occupancy and investment.
Property characteristics
| Age | Over 5050 years |
|---|---|
| Layout | 4+1 |
| Usable area | 100 m² |
| Condition | Good |
|---|---|
| Listing ID | 1000052 |
| Price per unit | €2,950 / m2 |
What does this listing have to offer?
| Balcony | |
| MHD 2 minutes on foot |
| Basement |
What you will find nearby
Still looking for the right one?
Set up a watchdog. You will receive a summary of your customized offers 1 time a day by email. With the Premium profile, you have 5 watchdogs at your fingertips and when something comes up, they notify you immediately.










