
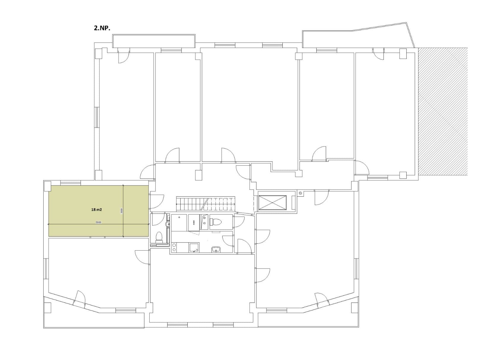
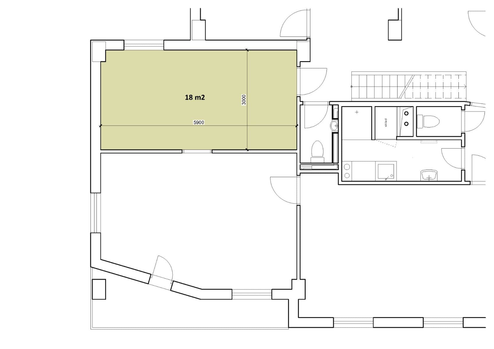
Office to rent • 18 m² without real estateNový Zlíchov, Prague - Smíchov
Interested?
Communicate all private owners and save CZK 4,750 on commissions.
Nabízíme k pronájmu kancelář o rozloze 18 m², která se nachází ve druhém patře pětipodlažní cihlové budovy. Nemovitost je v dobrém stavu a její nevybavená dispozice umožňuje kompletní přizpůsobení interiéru individuálním potřebám. Kancelář je ideální volbou pro malé firmy či podnikatele, kteří hledají pracovní prostory s možností parkování přímo u budovy.
Budova disponuje výtahem, což usnadňuje přístup do vyšších pater, a zároveň garantuje rychlý a bezpečný pohyb mezi jednotlivými úrovněmi objektu. Prostor je určen k provozu kancelářských činností a jeho umístění na atraktivním místě.
V případě zájmu mě prosím kontaktujte prostřednictvím komunikační platformy a rád poskytnu další informace či domluvím prohlídku.
Property characteristics
| Available from | 13/08/2025 |
|---|---|
| Building construction | Brick |
| Floor | 2. floor out of 5 |
| Location | Quiet area |
| Price per unit | CZK 264 / m2 |
| Condition | Good |
|---|---|
| Fully furnished | Unfurnished |
| Listing ID | 932704 |
| Land office | 18 m² |
What does this listing have to offer?
| Lift |
| Parking |
What you will find nearby
Interested?
Communicate all private owners and save CZK 4,750 on commissions.
Still looking for the right one?
Set up a watchdog. You will receive a summary of your customized offers 1 time a day by email. With the Premium profile, you have 5 watchdogs at your fingertips and when something comes up, they notify you immediately.






