
House to rent 4+kk • 110 m² without real estateMilinovského, Hořovice - Velká Víska, Středočeský Region
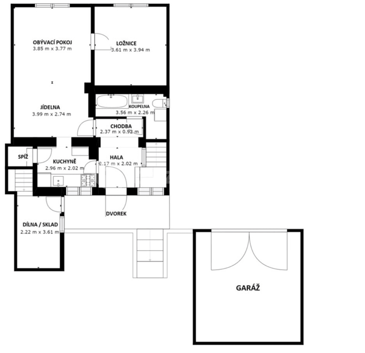
Nabízím k pronájmu cihlový dům s dispozicí 4+kk v klidné lokalitě. Tato nemovitost je v dobrém stavu a je částečně vybavena. Celková plocha domu je 110 m2 a pozemek má rozlohu 330 m2 s možností parkováni v garáži a u domu. K dispozici je také terasa o velikosti 6 m2 a sklep o rozloze 35 m2.
Prostory jsou ideální pro rodinu, ale i firmy pro 6-8 lidí.
Vytápění a ohřev vody je zajištěno kondenzačním kotlem. V domě proběhla rekonstrukce veškerých rozvodů a výměna oken (plastová), výměna vstupních dveří a rekonstrukce dílny.
V poplatcích za služby je započítán poplatek za plyn - 3100 Kč a vodu - 600 Kč.
Pokud Vás nabídka zaujala a hledáte dlouhodobý pronájem, tak mě kontaktujte prostřednictvím zpráv.
I offer for rent a beautiful brick house with a layout of 4+kk in a quiet location. This property is in good condition and partially furnished. The total area of the house is 110 m2 and the land has an area of 330 m2. There is a possibility of parking in the garage. There is also a terrace of 6 m2 and a cellar of 35 m2.
If you are looking for a spacious house with parking and a garage in a quiet location, this offer is just for you. For more information or to arrange a viewing, please contact me via messages. I look forward to hearing from you!
Property characteristics
| Age | Over 5050 years |
|---|---|
| Condition | Good |
| Layout | 4+kk |
| Design | Standard |
| Listing ID | 867471 |
| Location of the house | Separate |
| Usable area | 110 m² |
| Total floors | 2 |
| Available from | 01/10/2026 |
|---|---|
| Building construction | Brick |
| Fully furnished | Fully furnished |
| Heating | Gas boiler |
| EPC | C - Economical |
| Location | Quiet area |
| Land space | 330 m² |
| Price per unit | CZK 227 / m2 |
What does this listing have to offer?
| Basement: 35 m² | |
| Parking | |
| MHD 0 minutes on foot |
| Garage | |
| Pets are welcome | |
| Terrace: 6 m² |
What you will find nearby
Still looking for the right one?
Set up a watchdog. You will receive a summary of your customized offers 1 time a day by email. With the Premium profile, you have 5 watchdogs at your fingertips and when something comes up, they notify you immediately.



















