
Flat for sale 4+kk • 106 m² without real estateMořina - Mořina, Středočeský Region
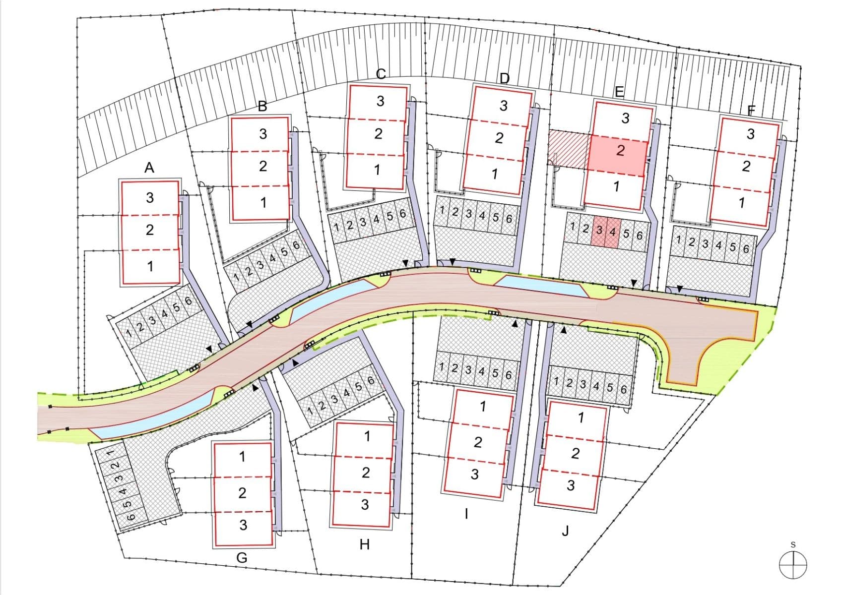
Mořina - Mořina, Středočeský RegionPublic transport 5 minutes of walking • ParkingIhned k nastěhování 1. etapa. 35 min autem do centra Prahy. Developerský projekt. Domy s dispozicí 4+kk 106 m2, zahrádky od 43 m2 do 647 m2, půdní prostor 25 m2. Škola, školka, obchody v místě. Nadstandardní provedení. Energeticky efektivní. Dostatek soukromí, nádherný výhled přes údolí do krajiny. K projektu vede nová komunikace včetně nového veřejného osvětlení. Oceníte nadstandardní vybavení a vysokou kvalitu provedení bez nutností doplácet. Předzahrádky, dvě parkovací stání pro každý dům, uzavřeny oplocený areál, vjezdová brána na dálkové ovládání, zátěžové laminátové podlahy, kvalitní sanita a obklady dlažby, keramické komíny, příprava na krb, fotovoltaiku, venkovní žaluzie, el. vratné, okna trojsklo. Kondenzační kotel, teplovodní podlahové vytápění bez radiátorů pod okny s maximálním pohodlím rovnoměrně dům ohřívá, elektronická regulace vytápění v každé místností, minimální náklady na vytápění. Energetická třída B - velmi úsporná. Záruka.
Skvělá Lokalita Mořina, občanská vybavenost v dosahu několika minut chůze.
Dopravní dostupností do Prahy a Berouna 15 minut autem. Autobusové spoje denně Mořina – Praha Zličín, Mořina – Beroun, nebo rychlík do Prahy a Berouna z Řevnic.
Neváhejte nás kontaktovat.
Video https://www.youtube.com/watch?v=_eG5ikwCT5Q
Vice informací k projektu naleznete na webu: www.domymorina.cz
Property characteristics
| Available from | 05/03/2026 |
|---|---|
| Building construction | Brick |
| Fully furnished | Unfurnished |
| Listing ID | 831884 |
| EPC | B - Very economical |
| Usable area | 106 m² |
| Condition | Under construction |
|---|---|
| Layout | 4+kk |
| Floor | 1. floor out of 2 |
| Ownership | Personal |
| Location | Quiet area |
| Price per unit | CZK 107,230.92 / m2 |
Are you choosing a apartment?
Make sure you have all the important information!
What does this listing have to offer?
| Front garden 49 m² | |
| MHD 5 minutes on foot |
| Parking |
What you will find nearby
Still looking for the right one?
Set up a watchdog. You will receive a summary of your customized offers 1 time a day by email. With the Premium profile, you have 5 watchdogs at your fingertips and when something comes up, they notify you immediately.
























