
Flat to rent 2 bedroom • 65 m² without real estateŠimáčkova, Prague - Holešovice
Interested?
Communicate all private owners and save CZK 33,000 on commissions.
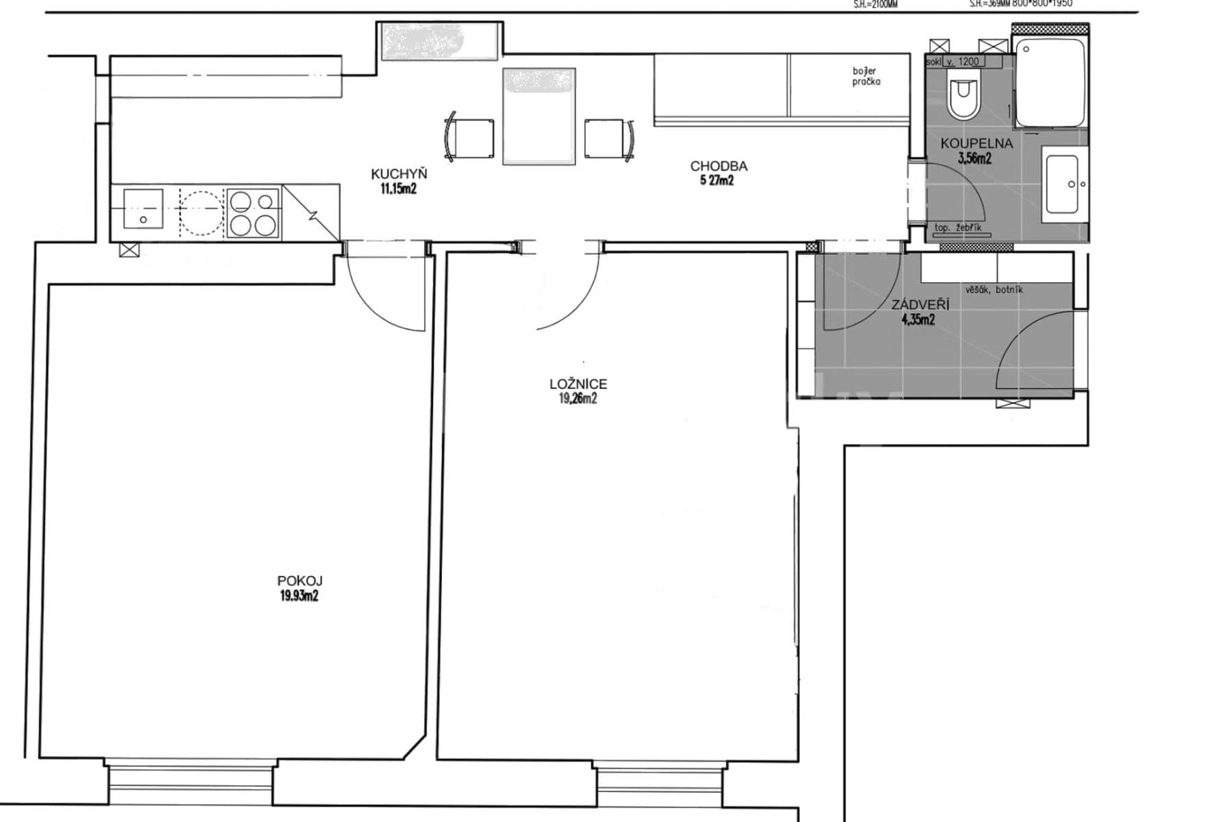
Nabízím pronájem světlého, velmi útulně působícího bytu s dispozicí 2+1 a plochou 65 m2, který se nachází v 6.p. cihlového domu s výtahem. Kompletní rekonstrukce bytu proběhla v roce 2014, renovace v roce 2025. Byt je orientován do klidného vnitrobloku a sestává z předsíně, kuchyně, dvou prostorných velmi světlých neprůchozích pokojů a koupelny.
Byt je nabízen jako částečně zařízený. V kuchyni kuchyňská linka vybavená varnou sklokeramickou deskou, pečící troubou, myčkou a vestavěnou lednicí s mrazákem. Dále je v kuchyni k dispozici jídelní stůl s židlemi, dostatek úložných prostor a pračka se sušičkou. Koupelna je zařízená prostorným sprchovým koutem, umyvadlem s úložným prostorem, toaletou a otopným žebříkem. V předsíni skříňky s úložným prostorem, věšák a botník. Podlahovou krytinu tvoří vinylová podlaha a dlažba (koupelna, předsíň). Vytápění moderními akumulačními kamny, ohřev vody bojlerem. K dispozici přípojky na internet a kabelovou televizi (Vodafone).
Nabízený byt se nachází ve velmi dobře udržovaném domě, který je dle potřeb průběžně rekonstruován, k dispozici společný dvorek s okrasnou zelení a posezením. Nemovitost se nachází ve vyhledávané lokalitě Prahy 7 - Letné, jen pár kroků od oblíbeného parku Stromovka. V pěším dosahu veškerá občanská vybavenost - samoobsluha Albert 100 m od domu. Vynikající dopravní dostupnost - zastávka tramvají 2 min. chůze, metro Vltavská cca 8 min. chůze.
Měsíční zúčtovatelné poplatky za služby 1.250,- Kč/osoba + spotřeba elektrické energie (převod na nájemce). Vratná kauce ve výši 2 měsíčních nájmů.
K dispozici ihned. Preferuji dlouhodobý pronájem, nekuřáky, bez domácích zvířat.
We offer for rent a bright, very cozy flat 2+1, 65 m2, with two bedrooms, one bathroom and kitchen room. Apartment is located on the 6th floor of a six-storey building. The apartment is located in a carefully maintained house, house is equipped with lift. The apartment has been completely renovated in autumn 2015. It consists of an entrance hall (4,4 m2), kitchen (16,4 m2), two spacious bright bedrooms (19,3 and 19,9 m2) and bathroom (3,6 m2). The windows face the quiet courtyard. The apartment is located in a popular location Prague 7, near to the nice Stromovka park. The nearest supermarket Albert is located just 100 meters from the house. Great accessibility to the city center by public transport – 2 minutes’ walk to the tram station, 8 minutes’ walk to Vltavska underground station.
Rent: 21.000, - CZK / month. Service charges: 700, - CZK / person / month - assuming 2 persons occupancy, water is included. Electricity, Internet: paid directly by tenant to electric utility company / internet provider. Security deposit: 2 month rent = 42.000 CZK. Available: from 1.10.2017.
Property characteristics
| Age | Over 5050 years |
|---|---|
| Building construction | Brick |
| Fully furnished | Partly |
| Design | Standard |
| Listing ID | 342785 |
| EPC | G - Extremely uneconomical |
| Location | Centre |
| Price per unit | CZK 507.69 / m2 |
| Available from | 01/05/2026 |
|---|---|
| Layout | 2 bedroom |
| Floor | 7. floor out of 7 |
| Heating | Electric boiler |
| Ownership | Personal |
| Reconstruction | Complete |
| Usable area | 65 m² |
What does this listing have to offer?
| Lift |
What you will find nearby
Interested?
Communicate all private owners and save CZK 33,000 on commissions.
Still looking for the right one?
Set up a watchdog. You will receive a summary of your customized offers 1 time a day by email. With the Premium profile, you have 5 watchdogs at your fingertips and when something comes up, they notify you immediately.






















