
Commercial property for sale • 39 m² without real estateVeleslavínská, Prague - Veleslavín
Veleslavínská, Prague - VeleslavínEquippedK prodeji stylový ateliér 2+kk o ploše 39 m² po kompletní rekonstrukci, Praha 6 – Veleslavín.
Nejedná se o vizualizaci. Fotografie v inzerátu odpovídají skutečnému aktuálnímu stavu ateliéru a nemovitost se prodává přesně v podobě, jak je zachycena na fotografiích, včetně zařízení.
Pokud hledáte moderní, promyšleně řešený prostor v žádané lokalitě s výbornou dostupností a investičním potenciálem, tento ateliér je skvělou volbou.
Ateliér prošel kompletní rekonstrukcí v roce 2026 – nové rozvody elektřiny, vody a odpadů, nové podlahy, koupelna, kuchyňská linka, interiérové dveře, osvětlení i kompletní zařízení interiéru.
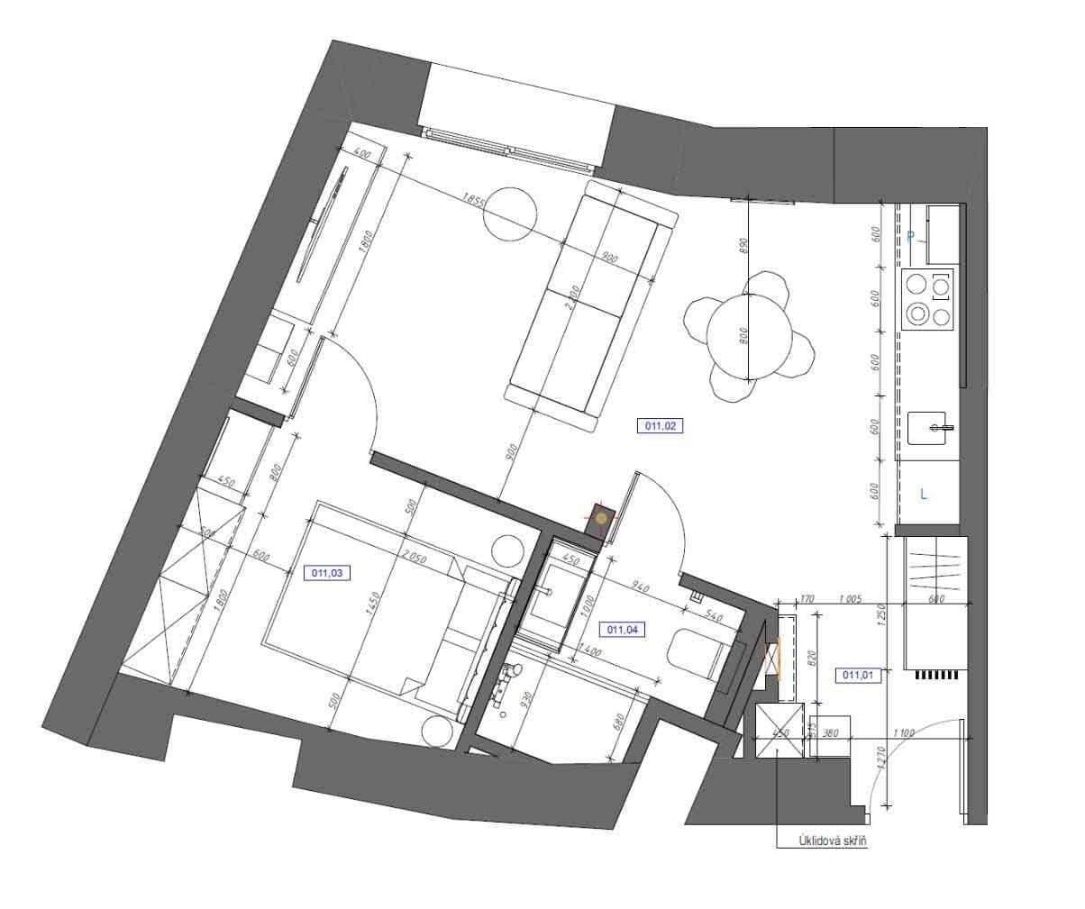
Interiér je navržen v čistém, nadčasovém stylu s důrazem na funkčnost a maximální využití prostoru. Otevřená dispozice vstupní části vytváří pocit vzdušnosti – ihned po vstupu se ocitnete v obytné části s kuchyňským koutem.
Kuchyňská linka je plně vybavena vestavěnými spotřebiči (lednice, indukční varná deska, digestoř a pračkou). Součástí prostoru je jídelní část a pohodlná sedačka. Instalována je také TV skříňka a designové nástěnné panely.
Samostatná ložnice nabízí klidnou a útulnou atmosféru. Je vybavena manželskou postelí, velkou šatní skříní a komodou. Promyšlené ambientní i bodové osvětlení vytváří příjemné světelné podmínky během celého dne i večera.
V předsíni se nachází velká vestavěná skříň s posuvnými dveřmi a botník. Koupelna je moderní, se sprchovým koutem a dostatkem úložných prostor. Elektrický bojler je elegantně ukryt ve vestavěné skříni v předsíni.
Vytápění je řešeno elektrickým podlahovým topením s regulací v jednotlivých místnostech. Ohřev vody zajišťuje vlastní elektrický bojler.
Ateliér se nachází ve sníženém přízemí (1.PP) bytového domu. Okno je orientováno do klidného vnitrobloku což zajišťuje klidné prostředí a zároveň přísun denního světla. Vstup do ateliéru je přes centrální vchod domu.
Dům prošel kompletní rekonstrukcí v roce 2025 (fasáda, střecha, společné prostory, rozvody) a je ve výborném technickém stavu.
Plocha: 39 m²
Dispozice: 2+kk
Měsíční náklady: fond oprav a služby cca 2 500 Kč / měsíc, elektřina cca 1 000 Kč / měsíc.
Lokalita Praha 6 – Veleslavín nabízí vynikající dopravní dostupnost – stanice metra Nádraží Veleslavín (linka A) je vzdálena pár minut chůze, stejně jako tramvajové a autobusové zastávky. Velkou výhodou je také rychlé přímé spojení na Letiště Václava Havla. Díky blízkosti univerzit je nemovitost atraktivní i jako investice k pronájmu studentům.
V okolí se nachází kavárny, restaurace, obchody a běžné služby. V dobré dostupnosti je přírodní rezervace Divoká Šárka a koupaliště Džbán. Lokalita tak spojuje klidné prostředí s výborným spojením do centra města.
V ceně jsou zahrnuty veškeré právní a související služby spojené s prodejem.
Prohlídky možné po dohodě, včetně večerů a víkendů.
Property characteristics
| Available from | 12/04/2026 |
|---|---|
| Building construction | Brick |
| Listing ID | 1011968 |
| EPC | G - Extremely uneconomical |
| Land non-residential space | 39 m² |
| Condition | After reconstruction |
|---|---|
| Fully furnished | Fully furnished |
| Ownership | Personal |
| Location of the commercial space | Separate |
| Price per unit | CZK 169,230.77 / m2 |
What you will find nearby
Still looking for the right one?
Set up a watchdog. You will receive a summary of your customized offers 1 time a day by email. With the Premium profile, you have 5 watchdogs at your fingertips and when something comes up, they notify you immediately.














