
Plot for sale • 973 m² without real estateTršice - Tršice, Olomoucký Region
Tršice - Tršice, Olomoucký RegionNabízíme k prodeji exkluzivní rohový stavební pozemek o výměře 973 m² s ovocnými stromy v žádané lokalitě Malostranské záhumenky v obci Tršice. Jedná se o jeden z posledních volných pozemků v této dokončené lokalitě s kompletní infrastrukturou.
Pozemek je zcela připraven k výstavbě. Je zde již zrealizovaná přístupová komunikace se sjezdem a k dispozici jsou přípojky vody, kanalizace a elektřiny. Po vyřízení povolení lze ihned zahájit stavbu bez dalších nákladných příprav.
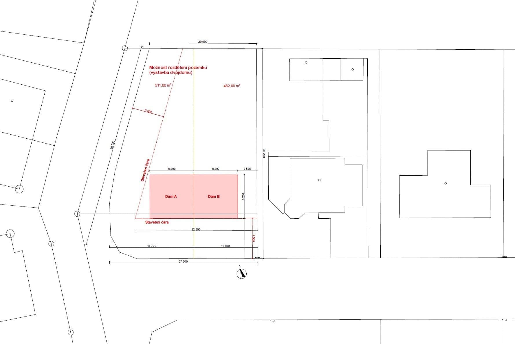
V místě stavební čáry má pozemek šířku 27,5 m a délku 39,2 m. Díky nadstandardní šířce je vhodný nejen pro výstavbu samostatně stojícího rodinného domu, ale i dvojdomu (příklad viz foto). Nabízí tedy zajímavou příležitost také z investičního pohledu.
Základní regulativy výstavby:
- max. 1,5 NP s obytným podkrovím
- šikmé střechy se sklonem 30°–43°
- celková výška max. 9,5 m nad terénem
Podrobné regulativy a územní studie jsou součástí fotodokumentace.
Tršice nabízejí velmi dobrou občanskou vybavenost – mateřskou i základní školu, zdravotní středisko, lékárnu, obchod i restauraci – a zároveň klidné bydlení v blízkosti přírody. Výborná dostupnost do Olomouce (cca 15 km / 20 min) a Přerova (cca 20 km / 25 min).
Cena je uvedena včetně právního servisu. Provizi neplatíte (přímý prodej). RK prosím nekontaktovat, děkujeme.
Property characteristics
| Available from | 04/04/2026 |
|---|---|
| Land type | Building |
| Location | Quiet area |
| Price per unit | CZK 4,912.64 / m2 |
| Listing ID | 1008936 |
|---|---|
| Ownership | Personal |
| Land space | 973 m² |
What you will find nearby
Still looking for the right one?
Set up a watchdog. You will receive a summary of your customized offers 1 time a day by email. With the Premium profile, you have 5 watchdogs at your fingertips and when something comes up, they notify you immediately.











