
Plot for sale • 2023 m² without real estateŽitná, Mělník - Mělník, Středočeský Region
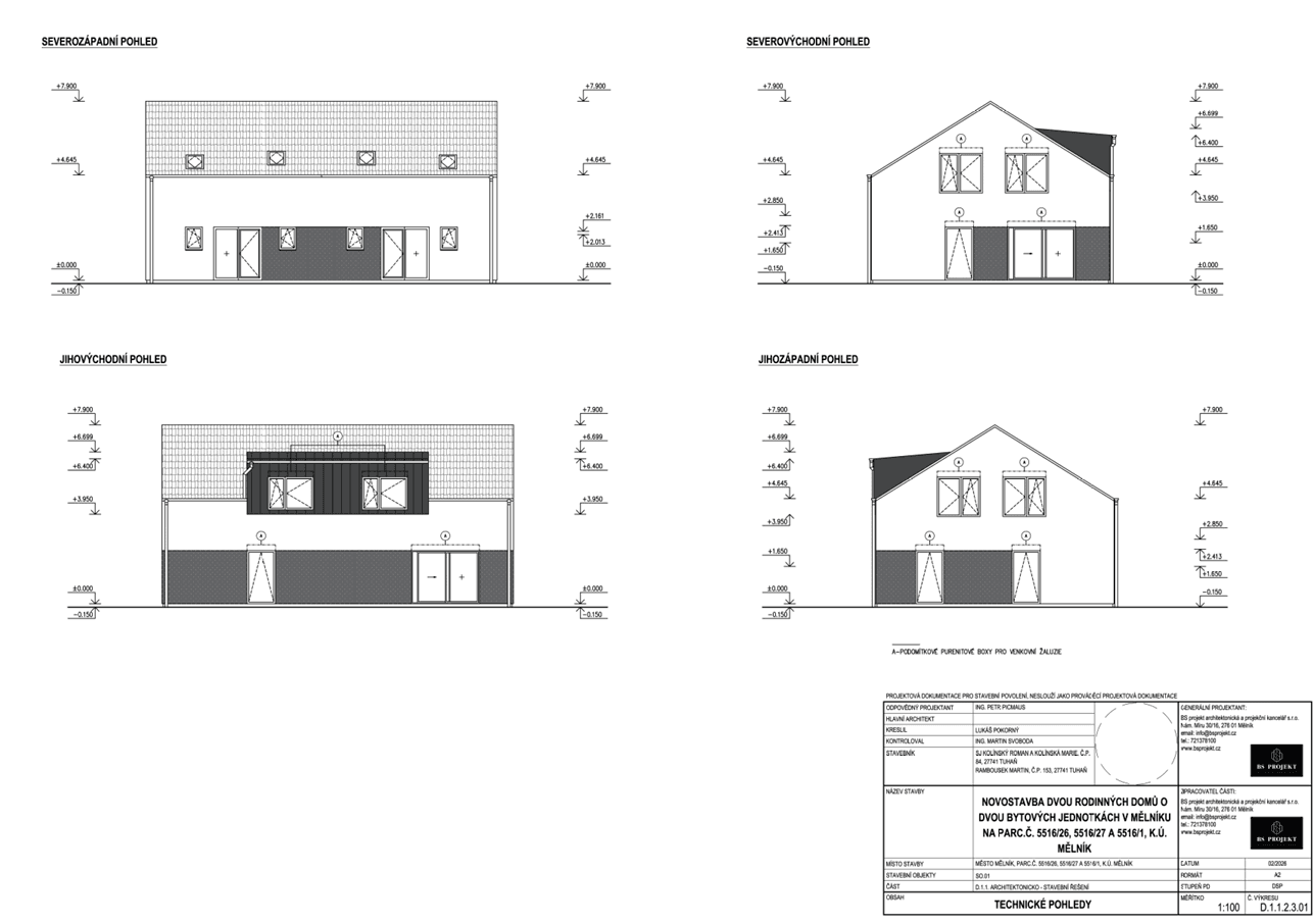
Nabízím k prodeji investiční pozemek s kompletní projektovou dokumentací na výstavbu dvou samostatně stojících rodinných domů, přičemž každý dům obsahuje dvě bytové jednotky, tedy celkem čtyři bytové jednotky. Projekt se nachází v atraktivní lokalitě Mělník – Chloumek.
Projekt je aktuálně ve fázi stavebního řízení. Součástí prodeje je pozemek určený k výstavbě dle územního plánu a kompletní projektová dokumentace splňující energetickou náročnost třídy B, tedy velmi úspornou budovu, včetně návrhu napojení na inženýrské sítě.
Předmětem prodeje je výhradně pozemek s projektem. Realizaci stavby prodávající nezajišťuje.
Každá bytová jednotka je navržena o dispozici 4+kk s užitnou plochou 123 m² a s vlastním pozemkem o velikosti přibližně 392 m². Součástí návrhu jsou dvě parkovací stání ke každé jednotce a zdvojené sousední zdi pro vyšší akustický komfort. Dispoziční řešení je moderní a praktické.
Mělník nabízí kompletní občanskou vybavenost, historické centrum i výbornou dostupnost do Prahy, přibližně 30 minut jízdy autem. Lokalita Chloumek poskytuje klidné rezidenční prostředí s blízkostí přírody i dobrou dopravní obslužností.
Cena za celek 15 960 000 Kč, bližší informace k ekonomice projektu na vyžádání.
Property characteristics
| Available from | 25/02/2026 |
|---|---|
| Land type | Building |
| Land space | 2,023 m² |
| Listing ID | 994775 |
|---|---|
| Ownership | Personal |
| Price per unit | CZK 7,889 / m2 |
What you will find nearby

Plot for saleU Křížku, Husinec - Husinec u Řeže, Středočeský Region- 1347 m²
CZK 13,490,000CZK 13,990,000
Save CZK 500,000
Still looking for the right one?
Set up a watchdog. You will receive a summary of your customized offers 1 time a day by email. With the Premium profile, you have 5 watchdogs at your fingertips and when something comes up, they notify you immediately.




