
Plot for sale • 1310 m² without real estateLudkovice - Ludkovice, Zlínský Region
DNESKA KOUPÍŠ, ZÍTRA STAVÍŠ!
!!!AKTUALIZACE!!!
V PRODEJI POUZE 3 POZEMKY - ASFALTOVÁ KOMUNIKACE A VEŘEJNÉ OSVĚTLENÍ HOTOVÉ.
Poslední 3 volné pozemky ze 6 - extra SLEVA 700.000 Kč na pozemek (původní cena 4 250 000 Kč) - platí už pouze pro jeden nejdříve prodaný pozemek.
❌pozemek č. 1 - závazně rezervováno
❌pozemek č. 2 - závazně rezervováno
✅pozemek č. 3 - volný
✅pozemek č. 4 - volný
✅pozemek č. 5 - volný
✅pozemek č. 6 - závazně rezervováno
VŠECHNY VOLNÉ POZEMKY MAJÍ:
😎Zasíťování vodou, elektřinou a kanalizací
😎Příjezd k pozemku po asfaltové komunikaci
😎Veřejné osvětlení u pozemku
😎Optický kabel pro internet na pozemku
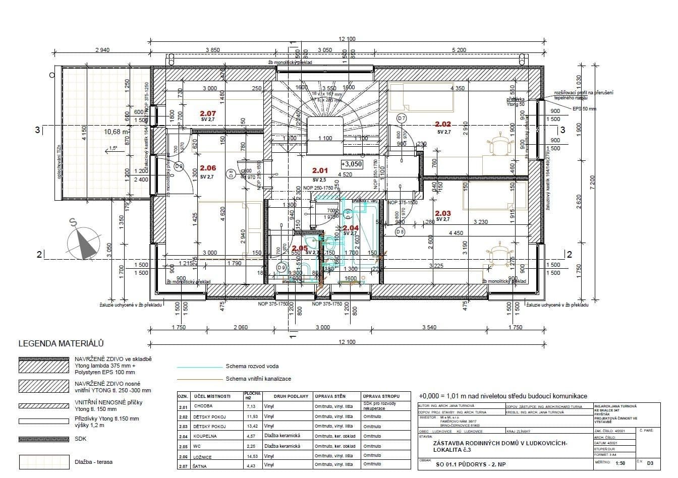
😎Projektovou dokumentaci a stavební povolení na dům
😎Parcelu s parkovacím stáním podél ulice ze zámkové dlažby
😎Srovnané pozemky - jsou zde provedené zemní práce, kdy na každém pozemku je odtěženo přes 1.000 m3 zeminy
😎Vizualizaci domu - exteriér i interiér - zde můžete čerpat inspiraci
pro více informací navštivte www.pozemkyludkovice.cz
🤓DNESKA KOUPÍŠ, ZÍTRA STAVÍŠ!
❌pozemek č. 7 - prodáno
Luhačovice - 6 km -> 6 min
Zlín - 16 km -> 19 min
Uherský Brod - 13 km -> 15 min
Property characteristics
| Available from | 04/07/2025 |
|---|---|
| Land type | Building |
| Land space | 1,310 m² |
| Listing ID | 921138 |
|---|---|
| Ownership | Other |
| Price per unit | CZK 2,709.92 / m2 |
What does this listing have to offer?
| MHD 1 minute on foot |
What you will find nearby
Still looking for the right one?
Set up a watchdog. You will receive a summary of your customized offers 1 time a day by email. With the Premium profile, you have 5 watchdogs at your fingertips and when something comes up, they notify you immediately.


















