
This listing is no longer active
Office to rent • 100 m² without real estateNad Kazankou, Prague - Troja
Nad Kazankou, Prague - TrojaPublic transport 2 minutes of walking • Equipped • Parking • Balcony 10 m² • Terrace 14 m²Pronájem kanceláře v Troji na 2 nebo 3 dny v týdnu – skvělá lokalita, rozumná cena
Adresa: Nad Kazankou 649/46, Praha 7 - Troja; prostřední patro
Datum začátku spolunájmu: kdykoliv
Rozsah nájmu: 2 nebo 3 dny v týdnu podle domluvy, po domluvě také možnost využití kanceláře o víkendech
Naši kancelář využíváme jen polovinu týdne, a tak hledáme firmu, která by ji využívala ve zbylých dnech. Kancelář se nachází ve středním patře vilky se zahradou, poskytuje pohodlný prostor k práci a příjemné prostředí.
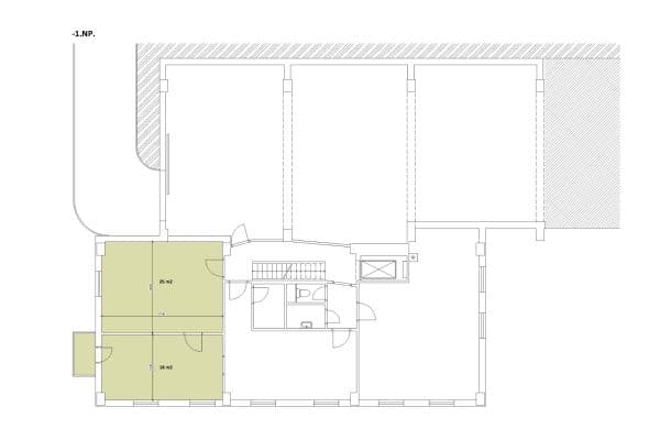
Prostory (celkem cca 100 m2) zahrnují velkou místnost s 8 pracovními stoly a dvě menší místnosti, plně vybavenou kuchyňku, koupelnu s vanou a WC. K dispozici je také venkovní terasa s grilem (v létě zastřešená), parkování pro 4 vozy sdílené s další firmou a velká zahrada (cca 1.000 m2).
O naší firmě: Jsme Educasoft a specializujeme se na e-learning – tvoříme vzdělávací systémy a kurzy, které nejsou jen funkční, ale také vizuálně příjemné a radostné k používání, jak pro uživatele, tak pro nás. V poslední době jsme si přivykli na home office a tak naši kancelář využíváte jen z půlky, což je škoda.
Koho hledáme: Ideální by bylo, kdyby nový spolunájemník sdílel naši lásku k ekologii (třídění odpadu, stop plýtvání, apod.) a nebráníme se, kdyby ji pozvedl ještě výš 🙂. Obecně hledáme někoho, s kým si sedneme hodnotově a s kým se dobře sladíme.
Dispozice prostor:
- velká místnost s 8 pracovními stoly, balkonem a plátnem s projektorem
- malá místnost se 4 pracovními stoly
- zasedací místnost s jedním stolem a 6 křesílky, plátnem a projektorem
- vybavená kuchyňka – kávovar na mletou kávu plus mlýnek na zrnkovou, rychlovarná konvice, lednice, myčka nádobí, mikrovlnka, plynový sporák s elektrickou troubou, dřez
- koupelna s vanou, umyvadlem a toaletou
- venkovní terasa s grilem, v letním období zastřešená nůžkovým stanem
- možnost parkování na zahradním parkovišti s prostorem celkem pro 4 vozy (komfortně), parkoviště je využíváno společně s dalším firmou, která sídlí ve spodním patře
- pěkná velká zahrada (cca 1.000 m2)
Poznámka k vybavení:
- většina pracovních míst je opatřena monitory (celkem 8+ monitorů)
- v létě lze využívat mobilní klimatizaci
- v zimě je topení zajištěno plynovým kotlem pro celou budovu
Náklady:
- Nájemné: pro variantu pronájmu na 2 dny v týdnu vychází samotný nájem na 8.600 Kč osvobozeno od DPH
- Služby a energie: cca 4.780 Kč/měsíčně bez DPH (dle rozsahu sdílených služeb)
- Podíl na energiích (zahrnuje elektřinu, plyn, vodu a odvoz popelnic): cca 2.000 Kč/měsíčně
- Správa kanceláře a péče o zahradu: cca 740 Kč/měsíc (cca 22.000 Kč/rok)
- Úklid prostor: 720 Kč/měsíčně
- Paušál za využívání sdíleného vybavení (monitory, stoly, projektory, kuchyňská výbava, apod...): 480 Kč/měsíčně
- Internet: 200 Kč/měsíc
- Podíl na zásobování kanceláře (káva, čaje, papír, hygienické a čistící prostředky…), záleží na domluvě, odhaduji cca: 640 Kč/měsíčně
- všechny částky jsou uvedeny bez DPH
Pro variantu 3 dny v týdnu: + 50 %.
Renting an office in Troja for 2 or 3 days a week - great location, reasonable price
Address: Nad Kazankou 649/46, Prague 7 - Troja; middle floor
Start date of co-rental: anytime
Rental period: 2-3 days per week by agreement
We only use our office half of the week, so we are looking for a company that would use it on the remaining days. The office is located on the middle floor of a villa with a garden, providing a comfortable workspace and a pleasant environment.
The premises (total of approximately 100 m2) include a large room with 8 work desks and two smaller rooms, a fully equipped kitchenette, a bathroom with a bathtub, and a toilet. There is also an outdoor terrace with a grill (covered in summer), parking for 4 cars shared with another company, and a large garden (approximately 1,000 m2).
About our company: We are Educasoft and specialize in e-learning - we create educational systems and courses that are not only functional but also visually appealing and enjoyable to use, both for users and for us. Lately, we have become accustomed to working from home, so our office is only used half of the time, which is a shame.
Who we are looking for: Ideally, the new co-tenant would share our love for ecology (waste sorting, waste reduction, etc.) and we would not mind if they took it even further 🙂. In general, we are looking for someone who aligns with our values and with whom we get along well.
Layout of the space:
- large room with 8 work desks, balcony, and projector screen
- small room with 4 work desks
- meeting room with one table and 6 chairs, projector screen
- equipped kitchenette - coffee maker for ground coffee and grinder for beans, kettle, refrigerator, dishwasher, microwave, gas stove with electric oven, sink
- bathroom with bathtub, sink, and toilet
- outdoor terrace with grill, covered with a canopy in summer
- parking on the garden parking lot with space for a total of 4 cars (comfortably), parking is shared with another company located on the ground floor
- nice large garden (approximately 1,000 m2)
Note on equipment:
- most workstations are equipped with monitors (a total of 8+ monitors)
- in summer, a mobile air conditioner can be used
- in winter, heating is provided by a gas boiler for the entire building
Costs:
- Rent: in the case of sharing exactly half, the rent itself amounts to 8,600 CZK exempt from VAT
- Services and utilities: approximately 4,780 CZK/month without VAT (depending on the extent of shared services)
Property characteristics
| Available from | 19/11/2024 |
|---|---|
| Building construction | Brick |
| Floor | 2. floor out of 3 |
| Location | Quiet area |
| Price per unit | CZK 86 / m2 |
| Condition | Very good |
|---|---|
| Fully furnished | Fully furnished |
| Listing ID | 873130 |
| Land office | 100 m² |
What does this listing have to offer?
| Balcony: 10 m² | |
| Pets are welcome | |
| Terrace: 14 m² |
| Parking | |
| MHD 2 minutes on foot |
What you will find nearby
Still looking for the right one?
Set up a watchdog. You will receive a summary of your customized offers 1 time a day by email. With the Premium profile, you have 5 watchdogs at your fingertips and when something comes up, they notify you immediately.


