Flat for sale 4+kk • 83 m² without real estateLidická, Kyjov - Kyjov, Jihomoravský Region
Lidická, Kyjov - Kyjov, Jihomoravský RegionPublic transport 6 minutes of walking • Equipped • Parking • Cellar 5 m² • Loggia 6.3 m²Prodáme prostorný, prosluněný 4+kk byt v cihlové budově, umístěný ve 4. patře s celkovým počtem podlaží 4. Právě jsme dokončili jeho totální rekonstrukci v hodnotě 2,8mil.Kč.
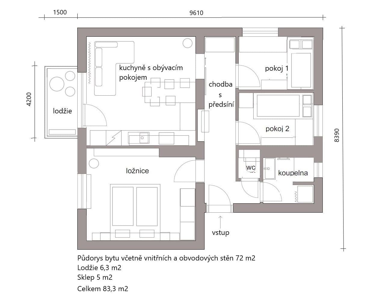
Byt je svým řešením i návrhem velkého množství úložných prostor přímo určený pro pohodlný život 4 - 5 členné rodiny i pro nadstandardní komfort páru.
Byt má mnoho výhod
- Krásný výhled z horního patra na všechny strany - viz foto. O mnoho větší zážitek je pohledem vlastním okem.
- Energetická nenáročnost, vše nové - rozvody topení i elektřiny.
- K vytápění elektrokotel plus klimatizace.
- Výborně řešená dispozice, rekonstrukci provedla společnost Kintex - špičková designerská a realizační společnosti, která je zakládajícím členem skupiny CZECH DECO TEAM - skupiny architektů a realizačních firem, u jejíhož zrodu stál Bořek Šípek.
- Nová okna i dveře, vše v trojskle.
- Právě dokončená realizace zateplení celého domu a vybudování prostorných lodžií o velikosti 6,3m2.
- K bytu náleží sklep o velikosti 5 m2, společné uzamykatelné prostory pro kočárky a kola.
- Parkování před domem je k dispozici bez omezení počtu aut.
- Byt je velmi blízko centru Kyjova (5min.chůze), přitom v umístěný směrem do klidové zóny.
Byt má toto vybavení
- Luxusní vestavná kuchyně včetně spotřebičů Electrolux
- Vestavná předsíňová stěna s věšáky
- Vestavná skříň na chodbě
- Koupelnový nábytek a zrcadlo
Ostatní části bytu jsou ponechány pro individuální flexibilní řešení na konkrétní obyvatele. V případě zájmu propojíme nového majitele se zástupcem designerské a realizační firmy, která celou rekonstrukci navrhla a realizovala pro případné pokračování v návrhu a realizaci dalších částí bytu.
Nabízíme Vám ideální příležitost pro bydlení v klidné lokalitě s dobrou dostupností služeb a občanské vybavenosti. Pro více informací a domluvu na prohlídce nás neváhejte kontaktovat.
Tato nemovitost je skvělou investicí do Vaší budoucnosti.
Property characteristics
| Age | Up to 10 years |
|---|---|
| Condition | Very good |
| Layout | 4+kk |
| Floor | 4. floor out of 4 |
| Heating | Electric boiler |
| Ownership | Personal |
| Reconstruction | Complete |
| Usable area | 83 m² |
| Available from | 03/03/2025 |
|---|---|
| Building construction | Brick |
| Fully furnished | Fully furnished |
| Design | Luxurious |
| Listing ID | 854891 |
| EPC | B - Very economical |
| Location | Quiet area |
| Price per unit | CZK 72,168.67 / m2 |
Are you choosing a apartment?
Make sure you have all the important information!
What does this listing have to offer?
| Basement: 5 m² | |
| Parking |
| Loggia balcony: 6.3 m² | |
| MHD 6 minutes on foot |
What you will find nearby
Still looking for the right one?
Set up a watchdog. You will receive a summary of your customized offers 1 time a day by email. With the Premium profile, you have 5 watchdogs at your fingertips and when something comes up, they notify you immediately.

















