
This listing is no longer active
Flat to rent 2+kk • 50 m² without real estatePod Harfou, Prague - Vysočany
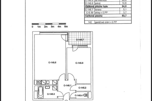
Pronajmu útulný byt 2+kk v panelové budově, který se nachází ve velmi dobrém stavu. Byt je částečně vybaven a nachází se ve 4. patře z 7. Nabízí plochu 50 m2 a disponuje výtahem pro pohodlný přístup. K dispozici je garážové stání pro vaše vozidlo.
Tento byt je ideální pro jednotlivce nebo pár, kteří hledají pohodlné a útulné bydlení v klidné lokalitě. V bytě není možnost spolubydlení a parkování je řešeno v garáži.
Pokud máte zájem o prohlídku této nemovitosti, kontaktujte mě prostřednictvím zprávy a domluvíme se na termínu. Těším se na vaše zájemce!
Property characteristics
| Available from | 01/08/2024 |
|---|---|
| Building construction | Precast concrete |
| Fully furnished | Partly |
| Listing ID | 853224 |
| Usable area | 50 m² |
| Condition | Very good |
|---|---|
| Layout | 2+kk |
| Floor | 4. floor out of 7 |
| Location | Quiet area |
| Price per unit | CZK 450 / m2 |
What does this listing have to offer?
| Garage |
| Lift |
What you will find nearby
Still looking for the right one?
Set up a watchdog. You will receive a summary of your customized offers 1 time a day by email. With the Premium profile, you have 5 watchdogs at your fingertips and when something comes up, they notify you immediately.




