
Plot for sale • 1034 m² without real estatePod Kapličkou, Předboj - Předboj, Středočeský Region
Pod Kapličkou, Předboj - Předboj, Středočeský RegionPublic transport 5 minutes of walkingPotřebujete hned zahájit stavbu, nebo jen hledáte krásný stavební pozemek pro váš vysněný dům ?
!!!!!! Dočasná SLEVA !!!!! Přímý prodej !!!!!
Zde můžete ihned získat bez dalších investic a prostředníka:
**St.Parcelu, **St.Povolení, **Projek RD. 📌 Pozemek je ihned připravený k výstavbě.
Nabízíme luxusní pozemek o rozloze více než 1000 m2 v žádané lokalitě Prahy-východ, 10 minut k OC Letňany. Sítě vyvedeny na pozemku, orientace jihozápad, asfalt. komunikace. Situován v klidné rezidenční čtvrti s velkorysými pozemky, který je ideální pro ty, kteří hledají spojení s přírodou a zároveň výbornou dostupnost do centra Prahy.
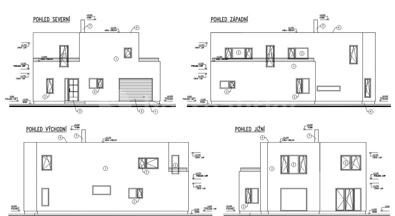
Navíc můžete/nemusíte využít projekt Villa Pod Kapličkou domu 6 +.. Stavba již povolena stavebním úřadem Líbeznice. Ušetříte mnoho času, starostí a hned můžete začít stavět, nebo vše změnit.
Jedná se o krásné klidné místo, se kterým se budete moci pochlubit.
(Stavební firmu mohu doporučit).
Video k dispozici.
Přímý prodej, info,cena k jednání, bez RK. na t. 608 210pětsedmpět
Odkaz na video: https://youtu.be/6PZtCqsuXjU
I am selling a beautiful, unique, and ready-to-build plot of land in the immediate vicinity of Prague. Large, flat, well-maintained, and sunny, in a very quiet residential area of modern family houses, close to the Golf Resort, about a 12-minute drive to the Letňany shopping center and metro. From the house to Wenceslas Square, it is a 22 km drive.
In the village itself, there is a kindergarten, a general practitioner, several shops and restaurants, a playground, and a sports area, as well as the beautiful golf course Yard Resort. Additional amenities can be found in the neighborhood and Prague is easily accessible, just 5 km away.
The plot itself is flawless and you could start building here tomorrow. Asphalt road, utilities, including building permit for an attractive house with guaranteed capacity, connection to sewerage and water supply, suitable even for demanding needs.
The size of the plot is 1040m2/13900Kč, direct negotiation.
This plot guarantees quality living and is truly worth it. It is necessary to see it first and convince yourself that if you are looking for a life near Prague connected with a peaceful environment and greenery, this plot is right for you.
Direct sale without a real estate agent.
Property characteristics
| Available from | 06/08/2025 |
|---|---|
| Land type | Building |
| Land space | 1,034 m² |
| Listing ID | 850402 |
|---|---|
| Location | Quiet area |
| Price per unit | CZK 10,445 / m2 |
What does this listing have to offer?
| MHD 5 minutes on foot |
What you will find nearby
Still looking for the right one?
Set up a watchdog. You will receive a summary of your customized offers 1 time a day by email. With the Premium profile, you have 5 watchdogs at your fingertips and when something comes up, they notify you immediately.

















