
Plot for sale • 476 m² without real estateK Cihelně, Prague - Satalice
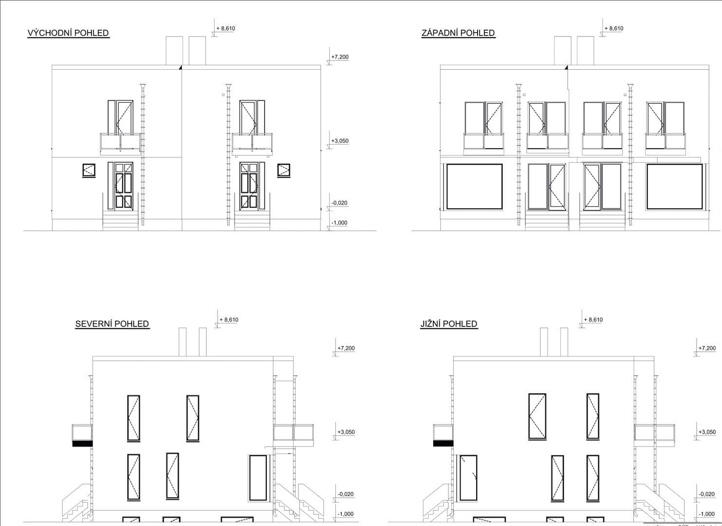
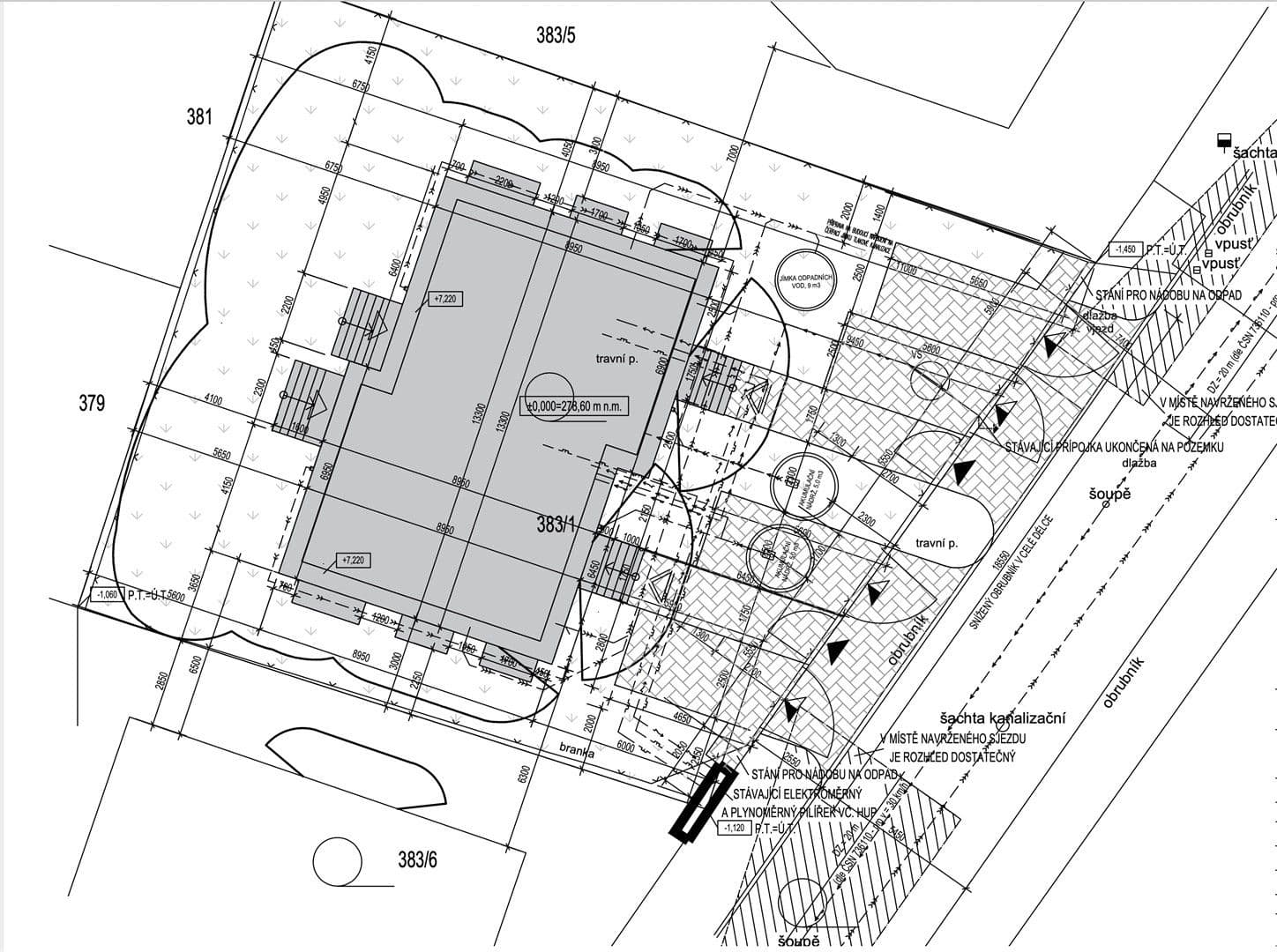
K Cihelně, Prague - SatalicePublic transport 1 minute of walkingPředmětem prodeje je exkluzivní stavební pozemek p. č. 383/1 o výměře 476m2, katastrální území Satalice v Praze 9 s platným stavebním povolením. Pozemek se nachází ve slepé ulici, v těsné blízkosti základní školy. Jedná se o poslední nezastavěný pozemek v této ulici. Kupní cena zahrnuje projektovou dokumentaci a stavební povolení k výstavbě rodinného domu s obytnou plochou 233 m2, zastavěná plocha 133 m2. Dům je nyní koncipován jako dvougenerační (2 x 4+kk) se samostatnými vstupy a parkováním na pozemku. V rámci změny stavby před dokončením je možná změna projektu, dispozice atd. Pozemek je oplocený a disponuje všemi inženýrskými sítěmi, (kanalizace, veřejný vodovod, elektřina a plyn). K pozemku je bezproblémový přístup autem po veřejné komunikaci.
Možnost financování koupě nemovitosti hypotečním úvěrem, cena: 9 980 000 Kč
The subject of the sale is an exclusive building plot parcel no. 383/1 with an area of 476m2, in the cadastral area of Satalice in Prague 9, with a valid building permit.
The plot is located in a dead-end street, in close proximity to a primary school. It is the last undeveloped plot in this street.
The purchase price includes project documentation and a building permit for the construction of a family house with a living area of 233m2 and a built-up area of 133m2. The house is currently designed as a two-generation (2 x 4+kk) with separate entrances and parking on the plot.
Changes to the project, layout, etc. are possible before completion.
The plot is fenced and has all engineering networks (sewerage, public water supply, electricity, and gas). There is easy access to the plot by car via a public road.
The purchase of the property can be financed by a mortgage loan.
Price: 14,280,000 CZK.
Property characteristics
| Available from | 01/04/2026 |
|---|---|
| Land type | Building |
| Location | Quiet area |
| Price per unit | CZK 20,966.39 / m2 |
| Listing ID | 816672 |
|---|---|
| Ownership | Personal |
| Land space | 476 m² |
What does this listing have to offer?
| MHD 1 minute on foot |
What you will find nearby



Plot for saleKvětinová, Čakovičky - Čakovičky, Středočeský Region- 1240 m²
CZK 7,990,000CZK 8,308,000
Save CZK 318,000

Still looking for the right one?
Set up a watchdog. You will receive a summary of your customized offers 1 time a day by email. With the Premium profile, you have 5 watchdogs at your fingertips and when something comes up, they notify you immediately.















