
This listing is no longer active
Flat to rent 2+kk • 43 m² without real estateSkuteckého, Prague - Řepy
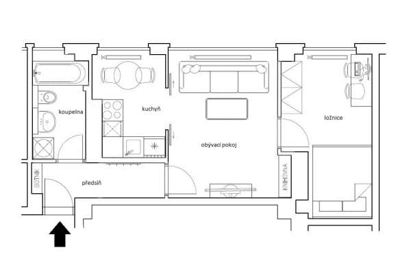
Skuteckého, Prague - ŘepyPublic transport 1 minute of walking • Equipped • Lift • Parking • Cellar 2 m²Pronajmu světlý zařízený byt o dispozici 2 + kk, velikost 43 m2 v lokalitě Praha – Řepy.
Byt po celkové rekonstrukci se nachází ve 2.patře panelového domu s výtahem.
Dispozice bytu jsou samostatná ložnice, obývací pokoj s kuchyňským koutem, samostatné WC, koupelna s vanou a pračkou, předsíň. Na podlahách dřevěné podlahy v obou pokojích a vytápěná dlažba v ostatním místnostech.
Orientace oken na jih a na západ. Okna jsou vybavena elektricky ovládanými předokenními roletami.
Zařízení bytu: kuchyňská linka se sklokeramickou varnou deskou a troubou, velká lednice s mrazákem, mikrovlnná trouba, pračka v koupelně, v ložnici vstavaná skříň a postel, v předsíni vstavaná skříň a v obýváku 2 skřínky a rozkládací pohovka.
Dům je zateplen a po rekonstrukci fasády.
Výborná dopravní dostupnost a veškerá občanská vybavenost v nejbližším okolí – Billa, Lidl, Hornbach, pošta, poliklinika, lékárna, fitness centrum, OC Řepy, dětské hřiště. V blízkosti Lesopark Řepy. Dům je situován přímo u zastávky autobusu a 500 m od tramvaje č.9. Vzdálenost do centra města 30 min a na Anděl 24 min. Bezzónové parkování u domu.
Byt je nekuřácký, vhodný pro páry (max 2 osoby), bez domácích mazlíčků.
Volný ihned nebo dle domluvy.
V reakci na tento inzerát o sobě prosím uvádějte alespoň základní informace o Vás (počet osob, zaměstnání, od kdy hledáte bydlení, zda máte domácího mazlíčka apod.)
Nájem 20000 kč, zálohy za služby SVJ 2832 kč, přepis elektřiny 1350 kč. Internet volitelně.
Vratná kauce 40000 kč.
Smlouva na dobu určitou 6 měsíců s možnosti prodloužení dle spokojenosti obou stran. Byt je určen k dlouhodobému pronájmu.
Nejbližší prohlídky jsou v pátek 30.5. večer.
Bright Furnished Apartment for Rent – 2+kk Layout, 43 m² in Prague – Řepy
A fully renovated bright and furnished apartment with a 2+kk layout (one bedroom and a living room with a kitchenette), size 43 m², located on the 2nd floor of a panel building with an elevator.
The apartment consists of a separate bedroom, living room with kitchenette, separate toilet, bathroom with a bathtub and washing machine, and an entrance hall. There are wooden floors in both rooms and heated tiles in the other areas.
The windows face south and west and are equipped with electric external blinds.
Apartment furnishings include: kitchen unit with ceramic hob and oven, large fridge with freezer, microwave, washing machine in the bathroom, built-in wardrobe and bed in the bedroom, built-in wardrobe in the hallway, and two cabinets and a pull-out sofa in the living room.
The building is insulated and the façade has been renovated.
Excellent transport accessibility and full civic amenities nearby – Billa, Lidl, Hornbach, post office, clinic, pharmacy, fitness center, OC Řepy shopping center, children’s playground. Near Řepy forest park. The building is directly at a bus stop and 500 m from tram no. 9. Travel time to the city center is 30 minutes, and to Anděl 24 minutes. Free parking near the building (no residential parking zones).
Non-smoking apartment, suitable for a couple (max. 2 people), no pets.
Available immediately or by agreement.
In response to this ad, please provide at least basic information about yourself (number of people, occupation, when you are looking to move in, if you have pets, etc.).
Rent: CZK 21,500
Service charges (HOA): CZK 2,832
Electricity transfer: CZK 1,350
Internet optional.
Refundable deposit: CZK 40,000
Lease term: Fixed 6-month contract with the possibility of extension upon mutual satisfaction. Intended for long-term rental. No agency/real estate fee.
Property characteristics
| Age | Up to 10 years |
|---|---|
| Condition | Very good |
| Layout | 2+kk |
| Floor | 2. floor |
| Heating | Distance |
| Ownership | Personal |
| Reconstruction | Complete |
| Usable area | 43 m² |
| Available from | 02/06/2025 |
|---|---|
| Building construction | Precast concrete |
| Fully furnished | Fully furnished |
| Design | Standard |
| Listing ID | 672794 |
| EPC | G - Extremely uneconomical |
| Location | Quiet area |
| Price per unit | CZK 465 / m2 |
What does this listing have to offer?
| Basement: 2 m² | |
| Parking |
| Lift | |
| MHD 1 minute on foot |
What you will find nearby
Still looking for the right one?
Set up a watchdog. You will receive a summary of your customized offers 1 time a day by email. With the Premium profile, you have 5 watchdogs at your fingertips and when something comes up, they notify you immediately.




