
Office to rent • 103 m² without real estateUruguayská, Prague - Vinohrady
Interested?
Communicate all private owners and save CZK 24,574 on commissions.
Přímý majitel, developerská společnost REMCO s.r.o. nabízí k pronájmu kancelářské prostory v administrativní budově v Uruguayské ulici, Praha 2.
Ideální poloha blízko centra Prahy, 200m od stanice metra Nám. Míru a tramvajových zastávek.
Možnost pronájmu parkování v podzemní garáži.
Cena nájmu je 239,-Kč/m2 + poplatky za služby 119,-Kč/m2, topné náklady 20,-Kč/m2 a elektrická energie.
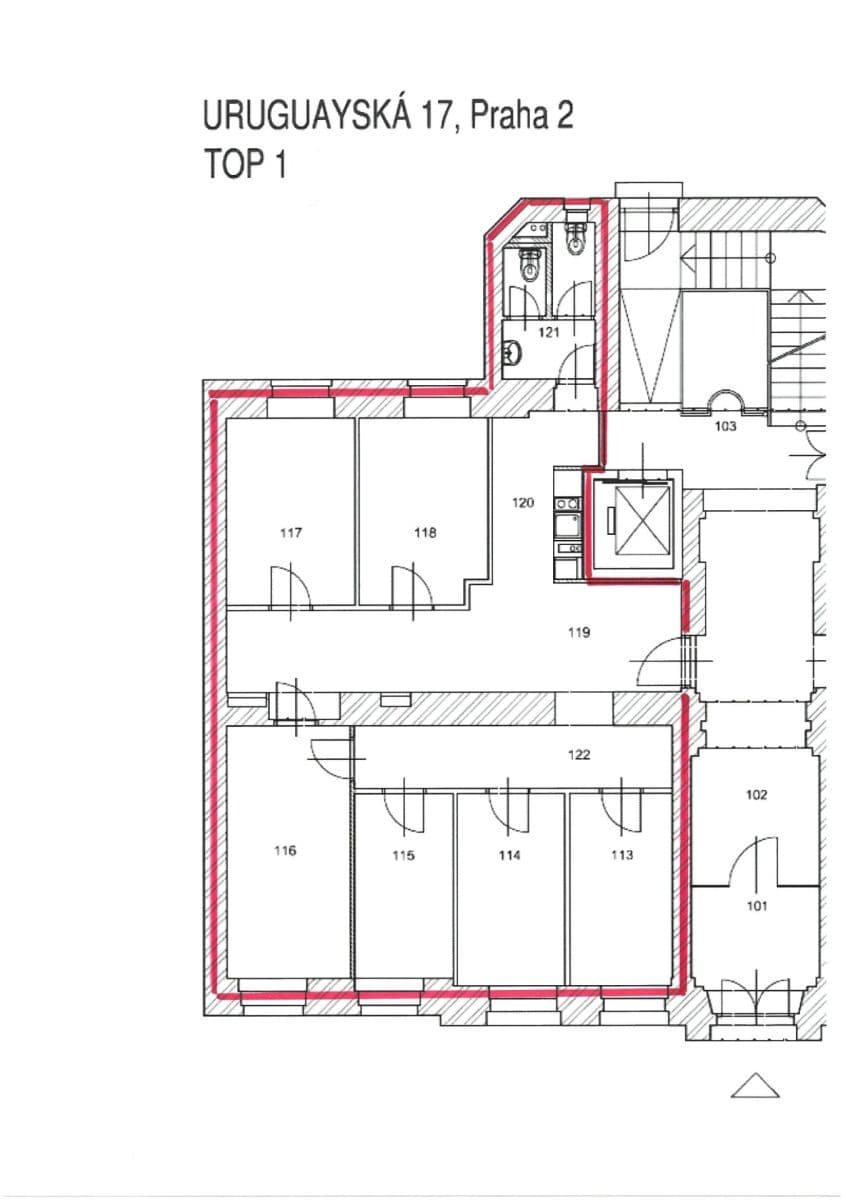
K dispozici je šest světlých, prostorných kanceláří o celkové výměře 102,82 m2. Kanceláře na nachází v 1NP objektu. Součástí prostor je vstupní hala s odděleným kuchyňským koutem, viz půdorys.
Prostory mají vlastní sociální zázemí, žaluzie a otevíratelná okna.
Elektrická energie se platí dle spotřeby (fakturace).
Prostory jsou volné od srpna, k pronájmu od září 2026.
Property characteristics
| Available from | 01/05/2024 |
|---|---|
| Building construction | Brick |
| Floor | 1. floor out of 5 |
| EPC | E - Wasteful |
| Land office | 103 m² |
| Condition | Good |
|---|---|
| Fully furnished | Unfurnished |
| Listing ID | 576148 |
| Location | Quiet area |
| Price per unit | CZK 239 / m2 |
What does this listing have to offer?
| Wheelchair accessible | |
| Lift | |
| MHD 1 minute on foot |
| Garage | |
| Parking |
What you will find nearby
Interested?
Communicate all private owners and save CZK 24,574 on commissions.
Still looking for the right one?
Set up a watchdog. You will receive a summary of your customized offers 1 time a day by email. With the Premium profile, you have 5 watchdogs at your fingertips and when something comes up, they notify you immediately.





