
Flat for sale 4+kk • 119 m² without real estateDominova, Prague - Stodůlky
Velkorysý rodinný mezonet 4+kk v posledním patře • klid, prostor a logická dispozice
Přímý prodej od majitele – bez provize.
Hledáte byt, který nabídne prostor a soukromí rodinného domu, ale zároveň nechcete opustit město? Tento mezonetový byt 4+kk v posledním patře domu v pražských Stodůlkách je ideální volbou pro rodiny, které chtějí víc než běžný byt – klid, světlo, jasně oddělené zóny a flexibilitu do budoucna.
Byt se nachází v nejvyšším patře domu, bez sousedů nad hlavou, s lodžií a otevřenými výhledy. Díky mezonetovému uspořádání poskytuje přirozené oddělení denního a klidového režimu – řešení, které funguje v každodenním rodinném provozu.
Logické rozdělení denní a klidové zóny. Dispozice je navržena s důrazem na funkčnost:
* denní část s obývacím pokojem a kuchyní tvoří přirozené centrum bytu,
* klidová část je rozdělena do dvou pater, což zajišťuje soukromí a klid pro všechny členy rodiny.
Ideální řešení pro rodinu:
* Horní patro je vyhrazeno rodičovské ložnici, oddělené od zbytku domácnosti – ideální pro klid a soukromí.
* Spodní patro nabízí dva samostatné dětské pokoje, případně kombinaci dětského pokoje a pracovny.
Toto uspořádání přirozeně odděluje „svět dětí“ a „svět rodičů“ a patří mezi nejžádanější rodinné dispozice.
Poslední patro – klid, světlo a soukromí. Umístění v posledním patře přináší:
* žádné sousedy nad vámi,
* více denního světla,
* nižší hluk,
* celkově klidnější a komfortnější bydlení.
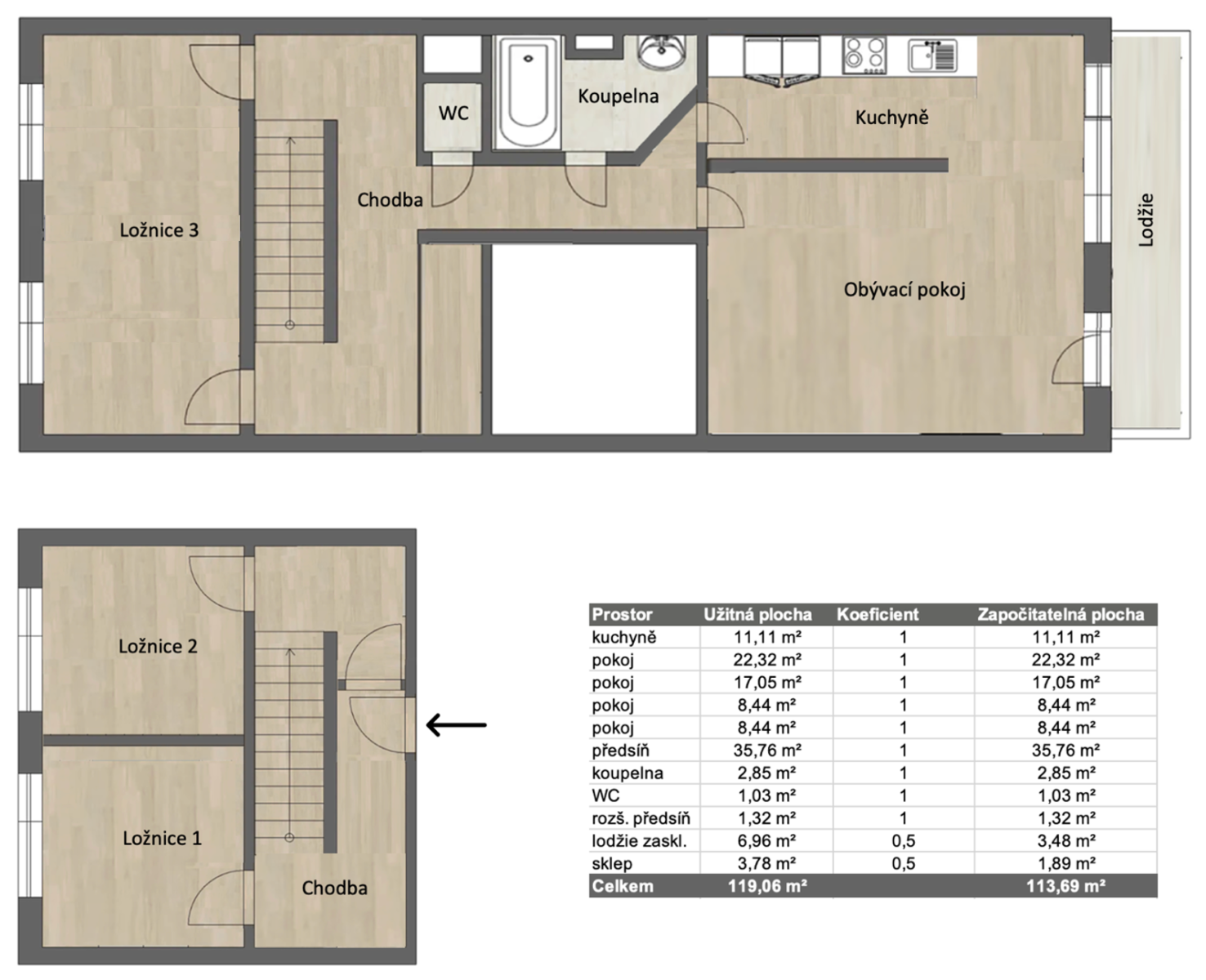
Součástí bytu je lodžie o velikosti 7 m², ideální pro ranní kávu či večerní posezení, a sklepní kóje 3,78 m², nabízející praktický úložný prostor.
Dispozice je navíc velmi flexibilní:
* byt lze upravit na 5+1, pokud bude v budoucnu potřeba další pokoj (např. pracovna nebo pokoj pro hosty).
Dům a technický stav:
Dům prošel rozsáhlou modernizací:
* zateplení,
* nové rozvody,
* moderní výtahy,
* revitalizované společné prostory, balkony a fasáda.
Energetická náročnost budovy třídy C znamená rozumné a dlouhodobě udržitelné provozní náklady.
Vnitroblok domu je v současnosti dále upravován (zateplení, venkovní žaluzie), což zvyšuje komfort i hodnotu nemovitosti.
Lokalita – Praha 5, Stodůlky
Oblíbená rezidenční lokalita s ideální kombinací:
* výborné dostupnosti MHD (metro Hůrka v pěší vzdálenosti),
* kompletní občanské vybavenosti (školy, školky, obchody, služby),
* zeleně, parků a sportovního vyžití
Místo, kde můžete pohodlně žít s rodinou a zároveň zůstat součástí města.
Proč právě tento byt
✔️ Velkorysý mezonetový byt 4+kk s možností úpravy na 5+1
✔️ Poslední patro – klid, soukromí, žádní sousedé nad vámi
✔️ Lodžie 7 m² + sklep 3,78 m²
✔️ Jasné rozdělení rodičovské a dětské zóny
✔️ Dům po rozsáhlé modernizaci
✔️ Výborná dostupnost metra - 3 min chůze
✔️ Prodej přímo od majitele – kupující neplatí provizi, RK prosím nekontaktovat
Generous Family Duplex Apartment 4+kk on the Top Floor • Peace, Space, and a Logical Layout
Direct sale by the owner – no commission.
Are you looking for an apartment that offers the space and privacy of a family house while still remaining in the city? This duplex apartment 4+kk on the top floor of a building in Prague’s Stodůlky is the ideal choice for families who want more than just an ordinary apartment – peace, light, distinctly separated areas, and future flexibility.
The apartment is located on the top floor of the building, with no neighbors above, featuring a loggia and open views. Thanks to its duplex arrangement, it naturally separates the daytime and quiet zones – a solution that works well in everyday family life.
A Logical Separation of Daytime and Quiet Zones. The layout is designed with functionality in mind:
• The daytime section, with the living room and kitchen, forms the natural center of the apartment.
• The quiet section is divided into two floors, ensuring privacy and peace for all family members.
An Ideal Solution for a Family:
• The upper floor is reserved for the master bedroom, separated from the rest of the home – ideal for quiet and privacy.
• The lower floor offers two separate children’s rooms, or possibly a combination of one child’s room and a study.
This arrangement naturally separates the “world of the children” from the “world of the parents” and is among the most sought-after family layouts.
Top Floor – Peace, Light, and Privacy. Being on the top floor brings:
• No neighbors above you,
• More daylight,
• Lower noise levels,
• Overall quieter and more comfortable living.
Included with the apartment is a 7 m² loggia, ideal for your morning coffee or an evening chat, and a 3.78 m² basement storage room, providing practical storage space.
Additionally, the layout is very flexible:
• The apartment can be converted into a 5+1 if another room is needed in the future (for example, a study or a guest room).
The Building and Its Technical Condition:
The building has undergone extensive modernization:
• Insulation,
• New utility installations,
• Modern elevators,
• Revitalized common areas, balconies, and facade.
The building’s energy class C indicates reasonable and sustainably low operating costs over the long term.
The inner courtyard of the building is currently undergoing further improvement (insulation, external blinds), which increases both comfort and the property value.
Location – Prague 5, Stodůlky
A popular residential area offering the ideal combination of:
• Excellent public transport accessibility (Hůrka metro station is within walking distance),
• Complete civic amenities (schools, kindergartens, shops, services),
• Green spaces, parks, and sports facilities
A place where you can live comfortably with your family while still remaining part of the city.
Property characteristics
| Available from | 01/05/2026 |
|---|---|
| Building construction | Precast concrete |
| Fully furnished | Partly |
| Listing ID | 1018021 |
| EPC | C - Economical |
| Usable area | 119 m² |
| Condition | Good |
|---|---|
| Layout | 4+kk |
| Floor | 7. floor out of 7 |
| Ownership | Personal |
| Location | Residences |
| Price per unit | CZK 98,739.50 / m2 |
Are you choosing a apartment?
Make sure you have all the important information!
What does this listing have to offer?
| Basement: 4 m² | |
| Loggia balcony: 7 m² |
| Lift |
What you will find nearby
Still looking for the right one?
Set up a watchdog. You will receive a summary of your customized offers 1 time a day by email. With the Premium profile, you have 5 watchdogs at your fingertips and when something comes up, they notify you immediately.
























