House for sale 4 bedroom • 120 m² without real estateBeckov - Beckov, Trenčiansky Region
Ponúkame na predaj krásny dvojdom vo výstavbe (2 samostatné bytové jednotky) v jednej z najžiadanejších lokalít regiónu – v obci Beckov. Bonusom, ktorý vám neponúkne nikto iný, je priamy a dychberúci výhľad na hrad Beckov priamo z vašej budúcej terasy. Dom bude postavený v prevedení holodom s terasou, spevnenými plochami a oplotením.
Základná charakteristika
• Stav: Rozostavaná stavba (možnosť dokončenia podľa vlastných predstáv).
• Holodom (materiál tehla hrúbky 300 mm): rozvody vody, elektriny, zateplenie strechy minerálna vata hrúbky 450 mm, vnútorné omietky, maľovka, vonkajšie zateplenie hrúbky 200 mm, fasáda silikón, odstavná plocha pre 6 áut (obe bytové jednotky), oplotenie.
• Pozemok: Rozloha 700 m², z toho zastavaná plocha o rozlohe 310 m², slnečný, úplne rovinatý a ideálne orientovaný.
• Vykurovanie: Moderné a úsporné tepelné čerpadlo, teplovodné podlahové kúrenie
• Inžinierske siete: Elektrina, voda, kanalizácia riešená žumpou.
• Konektivita: Optický internet (vzduchom) – ideálne aj pre home-office.
• Predpokladaná kolaudácia: November 2026
________________________________________
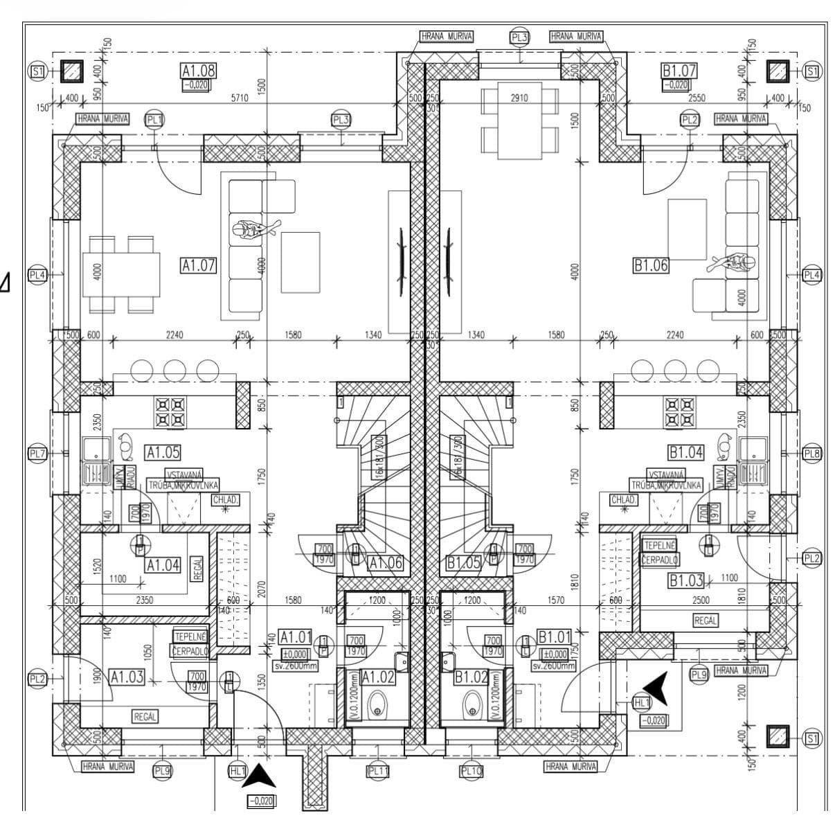
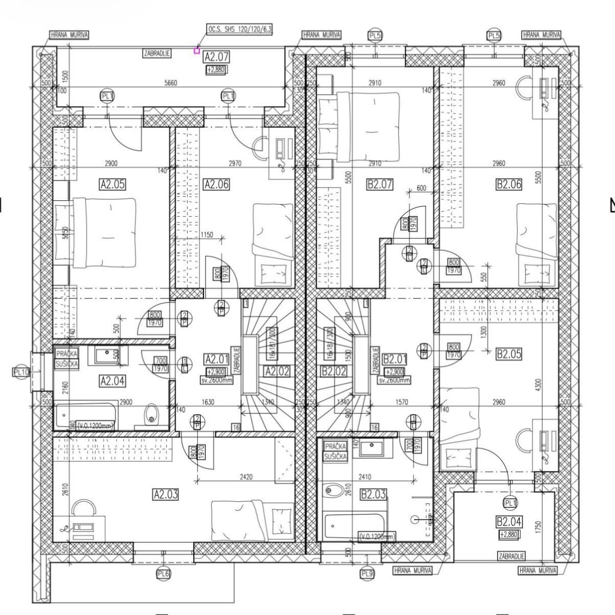
Dom je rozdelený na dve veľkorysé bytové jednotky, ktoré poskytujú dostatok súkromia a priestoru pre dve rodiny alebo ako investičná príležitosť.
Jednotka Podlažie Podlahová plocha Exteriér
BYT A 1. NP 58,06 m² Terasa (9,69 m²)
2. NP 59,38 m² Balkón (9,09 m²)
BYT B 1. NP 57,75 m² Terasa (4,95 m²)
2. NP 62,30 m² Balkón (4,67 m²)
BYT A:
1. NP: zádverie, kúpeľňa, technická miestnosť, špajza, kuchyňa, sklad, obývacia izba, terasa
2. NP: chodba, 3x izba, kúpeľňa, balkón
BYT B:
1. NP: zádverie, kúpeľňa, technická miestnosť, kuchyňa, sklad, obývacia izba, terasa
2. NP: chodba, 3x izba, kúpeľňa, balkón
Prečo práve tento dom?
1. Lokalita: Beckov ponúka kompletnú občiansku vybavenosť a rýchly prístup na diaľnicu D1. Pár metrov od pozemku sa nachádza cyklotrasa s priamym napojením na Nové Mesto nad Váhom, Piešťany alebo Trenčín.
2. Výhľad: Pozerať sa pri rannej káve na siluetu hradu je benefit, ktorý na hodnote časom len stúpa.
3. Flexibilita: Výber materiálov podľa vlastného vkusu (možnosť zariadenia do štandardu).
4. Ekonomika prevádzky: Tepelné čerpadlo je dnes najžiadanejším štandardom bývania.
________________________________________
Cena: BYT A – 234.900 €
BYT B – 234.900 €
Etapy úhrady kúpnej ceny (vo výstavbe):
• Rezervačná zmluva
• Záloha 15% (do 60 dní od podpisu rezervačnej zmluvy)
• Doplatok ceny (po kolaudácii / návrh na vklad do katastra)
V cene je zahrnutý kompletný právny servis a pomoc s vybavením financovania.
Zaujala vás táto ponuka? Príďte sa presvedčiť o čare tohto miesta osobne a neváhajte ma kontaktovať!
Property characteristics
| Available from | 22/04/2026 |
|---|---|
| Building construction | Brick |
| Fully furnished | Unfurnished |
| Low-energy | Yes |
| EPC | B - Very economical |
| Usable area | 120 m² |
| Total floors | 2 |
| Condition | Under construction |
|---|---|
| Layout | 4 bedroom |
| Listing ID | 1015429 |
| Ownership | Personal |
| Location of the house | Separate |
| Land space | 350 m² |
| Price per unit | €1,957.50 / m2 |
What does this listing have to offer?
| Balcony: 4.67 m² | |
| Terrace: 4.95 m² |
| Parking |
What you will find nearby
Still looking for the right one?
Set up a watchdog. You will receive a summary of your customized offers 1 time a day by email. With the Premium profile, you have 5 watchdogs at your fingertips and when something comes up, they notify you immediately.

















