Flat for sale 4+1 • 94 m² without real estateStaroměstská, České Budějovice - České Budějovice 3, Jihočeský Region
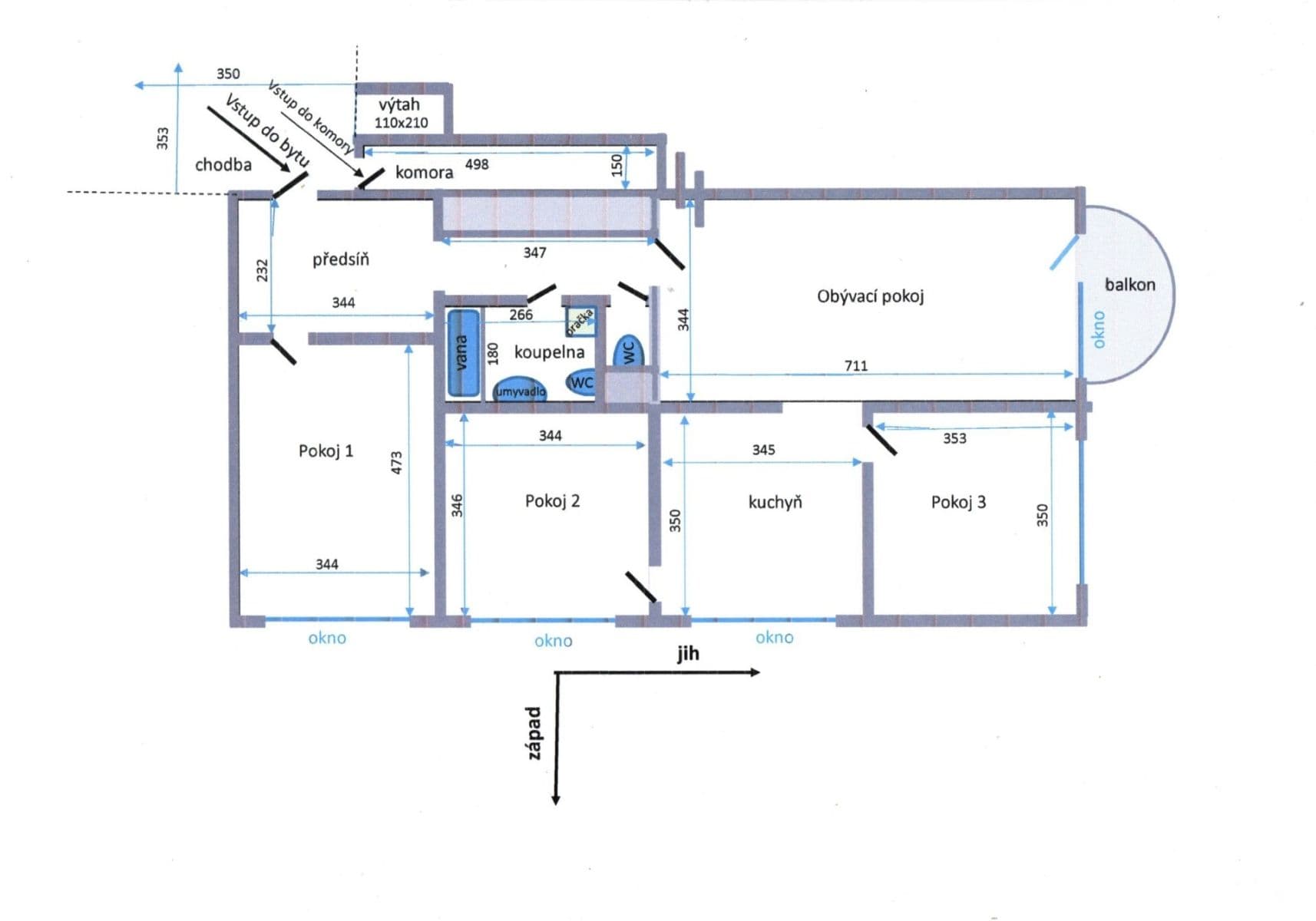
Nabízím k prodeji prostorný a světlý byt 4+1 o celkové ploše 94 m², který se nachází v panelovém domě. Nemovitost je ve velmi dobrém stavu a je částečně vybavená, takže si můžete zařídit interiér přesně podle svých představ. Dispozice bytu nabízí dostatek prostoru pro pohodlné rodinné bydlení a zároveň umožňuje flexibilní využití jednotlivých místností. Na podlaží jsou pouze 2 bytové jednotky s velkou chodbou a prostorným výtahem.
Byt se nachází v šestém nadpodlaží, je vybaven velkým výtahem a bezbariérovým přístupem, což ocení zejména starší obyvatelé či rodiny s malými dětmi. K domu bohužel parkování či garáž nenabízím, avšak v okolí domu jsou parkovací zóny určené pro místní obyvatele. Byt disponuje praktickým balkonem o ploše 3 m² a komorou vedle bytu o ploše 7.5 m² která poskytuje dostatek prostoru pro uskladnění osobních věcí. V přízemí domu je sklepní koje.
Byt má výhodnou polohu - do centra města 800m, nákupní centrum IGI 300m, pošta 300m, škola 400m, školka 200m, restaurace Perla do 100m.
Budova má energetický štítek kategorie C, což svědčí o relativně nízké energetické náročnosti a příznivých provozních nákladech. Nemovitost vlastním osobně, což zaručuje přímý a transparentní průběh celé transakce.
Pro další informace a domluvení prohlídky mě kontaktujte prostřednictvím zpráv na komunikační platformě.
Property characteristics
| Available from | 31/05/2026 |
|---|---|
| Building construction | Precast concrete |
| Fully furnished | Partly |
| Listing ID | 1014969 |
| EPC | C - Economical |
| Usable area | 94 m² |
| Condition | Very good |
|---|---|
| Layout | 4+1 |
| Floor | Ground floor |
| Ownership | Personal |
| Location | Quiet area |
| Price per unit | CZK 82,978.72 / m2 |
Are you choosing a apartment?
Make sure you have all the important information!
What does this listing have to offer?
| Balcony: 3 m² | |
| Basement: 9 m² | |
| MHD 2 minutes on foot |
| Wheelchair accessible | |
| Lift |
What you will find nearby
Still looking for the right one?
Set up a watchdog. You will receive a summary of your customized offers 1 time a day by email. With the Premium profile, you have 5 watchdogs at your fingertips and when something comes up, they notify you immediately.







