
Flat for sale 4+1 • 80 m² without real estateHurbanova, Prague - Krč
Nabízím k prodeji světlý a velmi prostorný mezonetový byt o dispozici 4+1 a celkové ploše 80 m², který se nachází v lokalitě Praha – Krč.
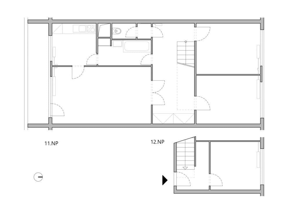
Byt je situován v 11. a 12. patře panelového domu se čtyřmi výtahy (vstup z 12. patra). Dům má celkem 13 nadzemních podlaží, což zajišťuje dostatek soukromí i výhledy do okolí.
Dispozice mezonetu nabízí nadstandardní prostor a vzdušnost, která není u klasických panelových bytů běžná. Díky originálnímu řešení působí byt velmi otevřeně a příjemně.
Byt je částečně zařízený a připravený k nastěhování bude od 1.6.2026. Součástí je moderní kuchyňská linka vybavená indukční varnou deskou, myčkou, americkou lednicí a pračkou. Koupelna je zděná. Nemovitost prošla částečnou rekonstrukcí a je ve dobrém, udržovaném stavu.
Velkým benefitem je zasklená lodžie o velikosti 7 m², ideální pro relaxaci nebo jako praktický úložný prostor. K bytu náleží také sklep o ploše 3 m².
Měsíční náklady na služby a energie činí aktuálně cca 11 000 Kč (z toho fond oprav přibližně 1 600 Kč). Výše záloh se může upravit dle skutečné spotřeby nového majitele.
Byt je vhodný jak pro rodinné bydlení, tak i jako investice například pro spolubydlení.
Lokalita nabízí kompletní občanskou vybavenost – v docházkové vzdálenosti se nachází školka, škola, obchody, pošta i zdravotnická zařízení včetně Thomayerovy nemocnice a IKEM. Milovníci přírody ocení blízkost Kunratického lesa. Přímo u domu je dětské hřiště a kavárna.
Výborná dopravní dostupnost – autobusová zastávka cca 300 m od domu, stanice metra Kačerov je dostupná během 3 zastávek.
Byt se nachází v jednom z unikátních mezonetových panelových domů z roku 1964, které jsou architektonicky zajímavé svým „prolínajícím se“ uspořádáním bytů připomínajícím strukturu Tetrisu. Výtahy staví vždy ve třetím patře, kde se nachází společná komunikační chodba.
V případě zájmu o prohlídku nebo více informací mě neváhejte kontaktovat.
Property characteristics
| Available from | 01/06/2026 |
|---|---|
| Building construction | Precast concrete |
| Fully furnished | Partly |
| Listing ID | 1012931 |
| EPC | E - Wasteful |
| Usable area | 80 m² |
| Condition | Good |
|---|---|
| Layout | 4+1 |
| Floor | 11. floor out of 12 |
| Ownership | Personal |
| Location | Residences |
| Price per unit | CZK 126,875 / m2 |
Are you choosing a apartment?
Make sure you have all the important information!
What does this listing have to offer?
| Wheelchair accessible | |
| Lift | |
| Parking |
| Basement: 3 m² | |
| Loggia balcony: 7 m² |
What you will find nearby
Still looking for the right one?
Set up a watchdog. You will receive a summary of your customized offers 1 time a day by email. With the Premium profile, you have 5 watchdogs at your fingertips and when something comes up, they notify you immediately.
























