
House for sale 5+kk • 132 m² without real estateHlavní, Chrustenice - Chrustenice, Středočeský Region
Nový nízkoenergetický rodinný dům 5+kk se zahradou a terasou v klidné obci Chrustenice ve Středočeském kraji, 15 minut jízdy od Prahy, na okraji Českého krasu. Dům o užitné ploše 132 m² stojí na pozemku o velikosti 512 m² a nabízí moderní dispozici, kvalitní řemeslné provedení a velmi nízké provozní náklady.
Nemovitost je plně dokončena a připravena k nastěhování.
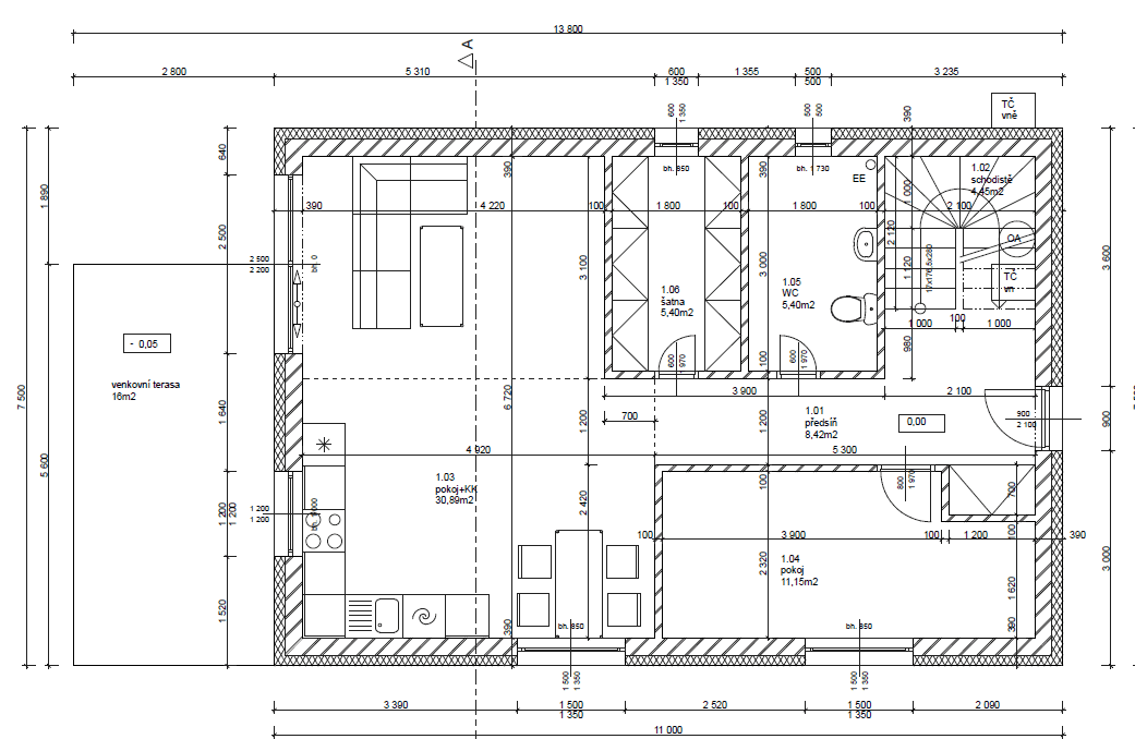
Vstupní část domu přirozeně navazuje na otevřený obytný prostor, který propojuje obývací pokoj, jídelnu a kuchyň. Dominantou této části jsou velkoformátová okna s trojskly a přímý vstup na venkovní terasu ze sibiřského modřínu. Obytný prostor i terasa jsou orientovány na jihovýchod, díky čemuž je interiér příjemně prosvětlený po většinu dne a zároveň zůstává komfortní i v letních měsících. Terasa vytváří ideální místo pro letní posezení, grilování a rodinné setkávání.
V přízemí se dále nachází samostatný pokoj vhodný jako pracovna nebo pokoj pro hosty, prostorná šatna, technické zázemí a samostatné WC. Centrálním prvkem domu je schodiště z masivního dubového dřeva, které propojuje obě podlaží a přirozeně doplňuje charakter interiéru.
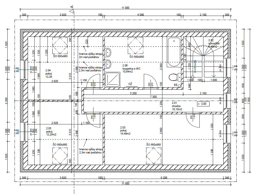
V patře jsou umístěny tři samostatné ložnice a prostorná koupelna vybavená vanou, sprchovým koutem a toaletou. Dispozice domu je navržena s důrazem na praktičnost, dostatek úložných prostor a pohodlné rodinné bydlení.
V celém domě se pod vinylovou podlahou nachází podlahové vytápění napojené na tepelné čerpadlo vzduch–voda, které zajišťuje úsporný a komfortní provoz. Velkoformátová okna s izolačním trojsklem přivádějí do interiéru dostatek denního světla a zároveň poskytují výborné tepelně-izolační vlastnosti. Součástí domu je vrtaná studna, retenční nádrž na dešťovou vodu a napojení na tlakovou kanalizaci. Díky moderním technologiím je dům klasifikován v energetické třídě B – velmi úsporná budova, díky čemuž se měsíční náklady na elektřinu při běžném provozu čtyřčlenné domácnosti pohybují pod hranicí 3 000 Kč.
Exteriér tvoří zahrada s dostatkem prostoru pro relaxaci i rodinné aktivity. Na pozemku byly zároveň zachovány dvě vzrostlé borovice, které vytvářejí příjemnou přirozenou dominantu zahrady, poskytují v létě částečný stín a pomáhají udržovat příjemné mikroklima i větší soukromí.
Parkování je zajištěno přímo na pozemku před domem, kde jsou k dispozici tři parkovací stání.
Chrustenice nabízejí ideální kombinaci klidného bydlení v přírodě a rychlé dostupnosti do Prahy. Kompletní občanská vybavenost je dostupná v nedalekých Loděnicích, včetně školy a školky dostupné autobusem ze zastávky přímo u pozemku. V okolí se nachází množství cyklostezek, turistických tras a přírodních lokalit Českého krasu.
Prodej je realizován přímo majitelem, bez zprostředkovatelské provize. Prohlídky nabízíme kdykoliv. Zajišťujeme plný právní servis při prodeji.
New low-energy family house (5+kk) with a garden and terrace in the quiet village of Chrustenice in the Central Bohemian Region, just a 15-minute drive from Prague and on the edge of the Czech Karst. The house, with a usable area of 132 m², stands on a 512 m² plot and offers a modern layout, quality craftsmanship, and very low operating costs.
The property is fully completed and ready to move in.
The entrance area of the house naturally flows into an open living space that connects the living room, dining area, and kitchen. The highlight of this area is the oversized triple-glazed windows and the direct access from the Siberian larch to the outdoor terrace. Both the living space and the terrace are oriented to the southeast, ensuring that the interior is pleasantly illuminated for most of the day while remaining comfortable during the summer months. The terrace creates an ideal setting for summer gatherings, barbecues, and family get-togethers.
On the ground floor, there is also a separate room suitable as an office or guest room, a spacious walk-in closet, technical facilities, and a separate toilet. A central element of the house is the staircase made of solid oak wood, which connects both floors and naturally complements the character of the interior.
On the upper floor, you will find three separate bedrooms and a spacious bathroom equipped with a bathtub, shower, and toilet. The layout of the house has been designed with practicality in mind, ensuring ample storage space and comfortable family living.
Throughout the house, under the vinyl flooring, there is underfloor heating connected to an air-to-water heat pump system, which ensures energy-efficient and comfortable operation. The large-format windows with insulating triple glazing bring in plenty of natural light while providing excellent thermal insulation properties. The property also includes a drilled well, a rainwater retention tank, and a connection to a pressure sewage system. Thanks to modern technologies, the house is rated in energy class B – a very economical building, which means that the monthly electricity costs for a typical four-person household stay below 3,000 CZK.
The exterior consists of a garden with plenty of space for relaxation as well as family activities. Two mature pine trees have been preserved on the plot, creating a pleasant natural focal point in the garden. They provide partial shade in the summer, help maintain a comfortable microclimate, and offer added privacy.
Parking is available directly on the plot in front of the house, where there are three parking spaces.
Chrustenice offers the ideal combination of tranquil living in nature with quick access to Prague. Complete civic amenities can be found in nearby Loděnice, including a school and kindergarten accessible by bus from the stop right by the property. The surrounding area features numerous cycling paths, hiking trails, and natural sites in the Czech Karst
The sale is handled directly by the own
Property characteristics
| Available from | 23/03/2026 |
|---|---|
| Building construction | Brick |
| Fully furnished | Partly |
| Low-energy | Yes |
| EPC | B - Very economical |
| Usable area | 132 m² |
| Price per unit | CZK 96,894 / m2 |
| Condition | New-build |
|---|---|
| Layout | 5+kk |
| Listing ID | 1004505 |
| Ownership | Personal |
| Location of the house | Separate |
| Land space | 512 m² |
What does this listing have to offer?
| Parking |
| Terrace: 20 m² |
What you will find nearby
Still looking for the right one?
Set up a watchdog. You will receive a summary of your customized offers 1 time a day by email. With the Premium profile, you have 5 watchdogs at your fingertips and when something comes up, they notify you immediately.



















