
Office to rent • 172 m² without real estateMannheimer Landstraße 5b, , Baden-Württemberg
Mannheimer Landstraße 5b, , Baden-WürttembergPublic transport 5 minutes of walkingThe property offers an attractive rental area of 172 m² on the first floor of a commercial building, suitable for offices, practices, or seminar rooms. The premises are functional and provide a pleasant working atmosphere, ideal for companies seeking modern and well-designed office spaces in a conveniently located, service-oriented area. Car parking spaces are available. If you are interested or have further questions, we look forward to your contact.
The office space is located in a commercial building that houses retail businesses for everyday needs. Right on site, you will find a bakery, a drugstore, and a discount store. The property is centrally located in Brühl with good connections to public transportation, ensuring optimal access to shopping and dining options.
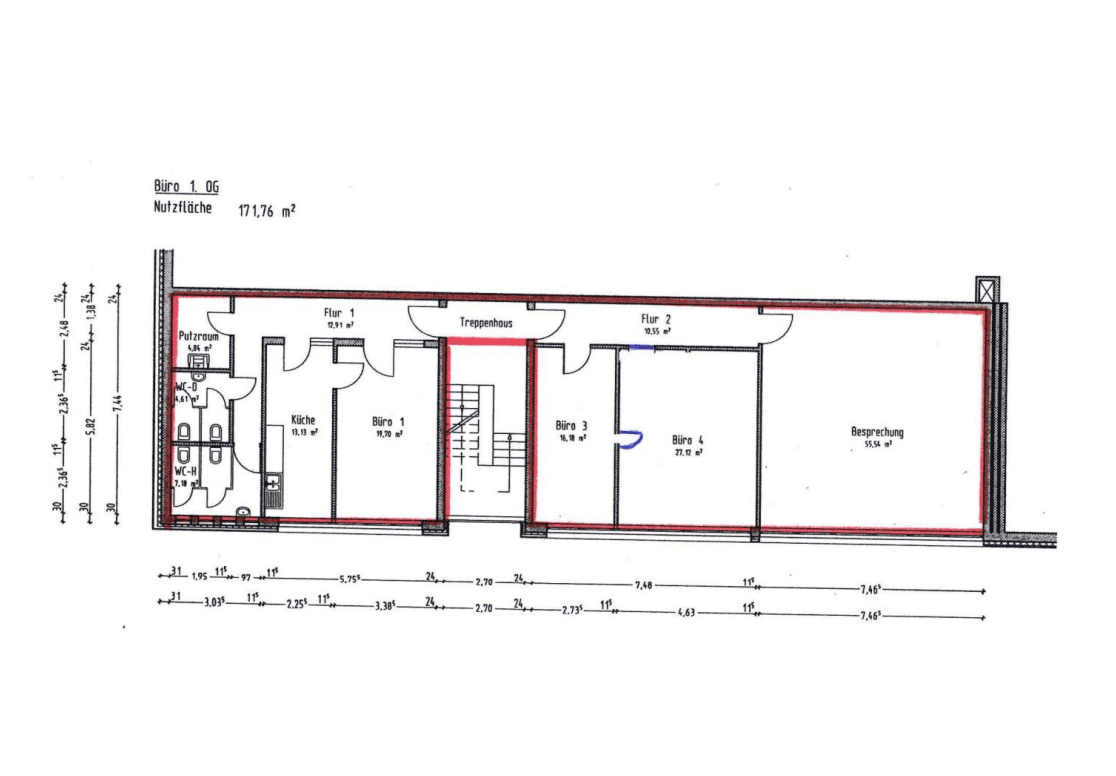
• Two spacious corridors that ensure easy access to the individual rooms
• Four meeting rooms of various sizes, flexibly usable for meetings or individual workspaces
• A kitchen
• Separate restroom facilities for ladies and gentlemen
• A practical cleaning/storage room for cleaning supplies and storage needs
ALDI SÜD Immobilienverwaltungs-GmbH & Co. oHG, Im Wöhr 7-9, 76437 Rastatt
Open partnership registered at the court: Amtsgericht Mannheim – HRA 710179
Managing Partner: ALDI SÜD Immobilienverwaltungs-GmbH, Mülheim an der Ruhr – Register Court: Amtsgericht Duisburg – HRB33750
Managing Directors: Christof Hake, Stefan Lehmann, Holger Philippin, Jan Riemann
Other Partners: ALDI SE & Co. Kommanditgesellschaften of the ALDI SÜD Group
Property characteristics
| Age | Over 5050 years |
|---|---|
| Floor | 1. floor |
| Land office | 172 m² |
| Condition | After reconstruction |
|---|---|
| Listing ID | 992941 |
| Price per unit | €9 / m2 |
What does this listing have to offer?
| Wheelchair accessible |
| MHD 5 minutes on foot |
What you will find nearby
Still looking for the right one?
Set up a watchdog. You will receive a summary of your customized offers 1 time a day by email. With the Premium profile, you have 5 watchdogs at your fingertips and when something comes up, they notify you immediately.










