Flat to rent 4+1 • 68 m² without real estateStuttgart Bad Cannstatt Baden-Württemberg 70372
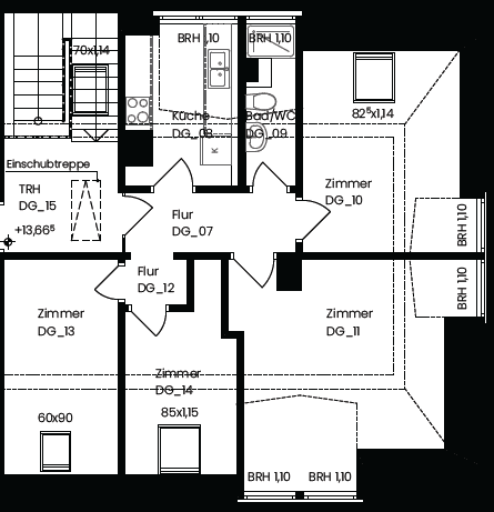
Stuttgart Bad Cannstatt Baden-Württemberg 70372Public transport 3 minutes of walkingThis bright 4-room attic apartment with approximately 68 m² of living space is located on the 5th floor of a well-maintained 16-unit building in Stuttgart-Bad Cannstatt. The apartment impresses with a functional layout featuring four separately accessible rooms and is particularly suitable for a small shared flat or for individuals who appreciate multiple separate living or work spaces.
All living areas are fitted with tiles and appear friendly and light-filled thanks to numerous windows. The sloping ceilings add to the pleasant living atmosphere.
The daylight bathroom includes a shower, WC, and sink; the sanitary fixtures have been recently renewed. Additionally, the apartment has been refurbished and handed over freshly painted.
The separate kitchen offers room for a counter unit as well as a small dining area.
Heating is provided by a gas-fired individual unit.
The apartment is available immediately.
It is located in the central area of Stuttgart-Bad Cannstatt on Martin-Luther-Straße – a well-established residential and commercial district with excellent infrastructure.
Everyday shopping options, bakeries, cafés, pharmacies, and doctors are within walking distance. Numerous restaurants and small shops also characterize the vibrant neighborhood.
Public transportation connections are excellent: bus and subway stops, as well as the Bad Cannstatt station, are only a few minutes away. From there, there are fast connections to Stuttgart’s city center as well as the airport.
Recreational opportunities are offered by the nearby green areas and walking paths along the Neckar River – ideal for leisure, sports, or a relaxed balance after work.
- 4-room attic apartment with approximately 68 m² of living space
- Functional layout with four individually accessible rooms
- Tiled floors in all living areas
- Daylight bathroom with shower, WC, and sink (sanitary fixtures recently renewed)
- Separate kitchen with window and tile backsplash
- Washing machine connection in the kitchen
- Optional: Fitted kitchen available for an additional monthly fee of €50
- Private storage room in the basement
- No balcony, no parking space available
The apartment is ideal for a maximum of 1–3 persons.
Pets are not allowed. Non-smoking apartment. Prospective tenants are required to submit a tenant self-disclosure, proof of income, and a Schufa report before signing the lease.
Property characteristics
| Age | Over 5050 years |
|---|---|
| Condition | After reconstruction |
| Floor | 5. floor out of 5 |
| Usable area | 68 m² |
| Available from | 20/02/2026 |
|---|---|
| Layout | 4+1 |
| Listing ID | 992911 |
| Price per unit | €15 / m2 |
What does this listing have to offer?
| Basement |
| MHD 3 minutes on foot |
What you will find nearby
Still looking for the right one?
Set up a watchdog. You will receive a summary of your customized offers 1 time a day by email. With the Premium profile, you have 5 watchdogs at your fingertips and when something comes up, they notify you immediately.













