
House for sale 6+kk • 191 m² without real estate, Baden-Württemberg
, Baden-WürttembergPublic transport 1 minute of walking • ParkingYour new home
In a popular family residential area in Leingarten, we can offer you this beautiful semi-detached house with an above-average amount of space and rooms.
The semi-detached house and the in-law apartment were renovated in 2017. In 2022, the facade was repainted.
The place to feel at home
The house was built in 1999/2000 with a total of approximately 190.52 m² of living space and is located on a quiet residential street.
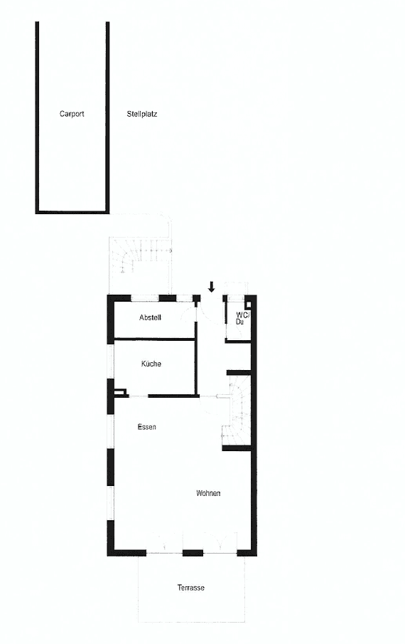
Across three floors, up to the attic, you can enjoy up to 5 bedrooms and one bathroom, as well as a kitchen, a spacious storage room, a guest WC, and a large, bright living/dining area.
Additionally, if desired, a small 1.5-room in-law apartment in the basement can be rented separately.
A south-facing garden with a large sun terrace will appeal to you and invites you to relax in the greenery.
Leingarten is a popular and attractive town with currently around 12,500 residents. The proximity to Heilbronn with its light rail connection, as well as the very good infrastructure, provide a high quality of living.
Set in a scenically attractive location around the Heuchelberg with vineyards, many sports and local recreation facilities, and an active community life, Leingarten guarantees excellent leisure opportunities.
Numerous doctors, pharmacies, and health and care facilities are established in Leingarten. Additionally, several bakeries, butcher shops, supermarkets, and discount stores provide excellent supply.
Families benefit from 10 kindergartens, two primary schools, and a comprehensive school.
Features
- Fitted kitchen
- Water softening system (2018)
- 1 carport with extension
- 2 parking spaces
- Prepared for solar thermal energy
In-law apartment approx. 31 m²
- Separate entrance
- Kitchenette
- Storage room with space for shelving, a washing machine, and a dryer
- Living/sleeping area
- Bathroom
The in-law apartment is currently rented.
For a viewing, we kindly request a financing confirmation in advance and ask for your understanding.
If you have any further questions, just get in touch.
Property characteristics
| Age | Over 5050 years |
|---|---|
| Layout | 6+kk |
| EPC | B - Very economical |
| Land space | 256 m² |
| Price per unit | €3,636 / m2 |
| Condition | Good |
|---|---|
| Listing ID | 971762 |
| Usable area | 191 m² |
| Total floors | 3 |
What does this listing have to offer?
| Basement | |
| MHD 1 minute on foot |
| Parking | |
| Terrace |
What you will find nearby
Still looking for the right one?
Set up a watchdog. You will receive a summary of your customized offers 1 time a day by email. With the Premium profile, you have 5 watchdogs at your fingertips and when something comes up, they notify you immediately.





