
Office to rent • 222 m² without real estateHamburg Eidelstedt Hamburg 22525
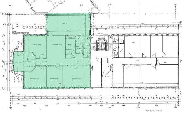
Modern office space on the 1st floor of a prestigious office building with direct visibility to the S-Bahn / very bright due to three-sided lighting / currently divided into 6 rooms including a meeting room, as well as an archive and server room / fitted kitchen with dishwasher / internal ladies’ and men’s toilets / electrically controlled external blinds / surrounding cable duct for media and power supply / suspended ceiling with integrated lighting / office area access via passenger lift and staircase
Central location in the Stellingen business park / directly at the Eidelstedt S-Bahn station / near the stadium and Barclaycard Arena / A7 (access to Volkspark) approximately 4 minutes by car
Anthracite carpet flooring / skirting boards - cable channels / integrated ceiling lighting / fiber-optic internet available / plus 4 parking spaces at €50.00 each
Property characteristics
| Age | Over 5050 years |
|---|---|
| Condition | Very good |
| Listing ID | 971514 |
| Price per unit | €0 / m2 |
| Available from | 07/12/2025 |
|---|---|
| Floor | 1. floor out of 5 |
| Land office | 222 m² |
What does this listing have to offer?
| Lift | |
| MHD 2 minutes on foot |
| Parking |
What you will find nearby
Still looking for the right one?
Set up a watchdog. You will receive a summary of your customized offers 1 time a day by email. With the Premium profile, you have 5 watchdogs at your fingertips and when something comes up, they notify you immediately.




















