
Commercial property to rent • 834 m² without real estateLandsberger Straße 452 München Pasing Bayern 81241
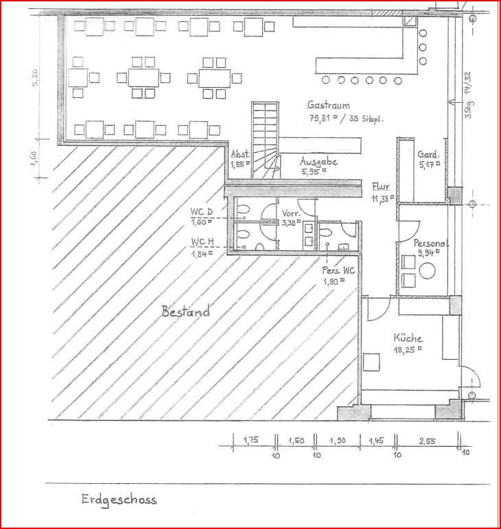
Landsberger Straße 452 München Pasing Bayern 81241Public transport 1 minute of walking • ParkingFor rent: an exceptional pavilion in a prime location on Landsberger Straße. The property impresses with its striking architecture featuring extensive glass facades and offers a variety of usage options. Currently, the space is used as a car dealership with an integrated bar. A permit for operating as a restaurant is available, so that culinary concepts can also be implemented without any issues. The high-quality fittings can be taken over from the previous tenant if desired.
Important note:
Usage for parties or loud music is not allowed as there is a residential building directly adjacent.
Landsberger Straße is one of Munich’s heavily trafficked main roads. The pavilion is located in a vibrant environment with good connections to public transportation and the highway. High visibility guarantees optimal advertising impact.
• Modern glass architecture with high visibility
• Restaurant permit available
• Bar area and seating already set up
• Separate restrooms for men and women
• Large exhibition spaces, ideal for a showroom, event space, or gastronomy (without loud music)
Sustainable energy supply:
• Central gas heating with heat pump
• Additional electric radiant heaters
• Tenant electricity concept via a photovoltaic system with storage
• Very energy-efficient and environmentally friendly
Parking facilities:
• 11 underground parking spaces
• 3 above-ground parking spaces
Arno Halmburger Familien eGbR - Bremer Straße 7, 80807 Munich
Property characteristics
| Age | Over 5050 years |
|---|---|
| Condition | Good |
| Land non-residential space | 834 m² |
| Available from | 01/02/2026 |
|---|---|
| Listing ID | 971271 |
| Price per unit | €0 / m2 |
What does this listing have to offer?
| Parking |
| MHD 1 minute on foot |
What you will find nearby
Still looking for the right one?
Set up a watchdog. You will receive a summary of your customized offers 1 time a day by email. With the Premium profile, you have 5 watchdogs at your fingertips and when something comes up, they notify you immediately.












