Flat to rent 3+1 • 69 m² without real estateSteinweg 26 Halle, Saale Südliche Innenstadt Sachsen-Anhalt 06110
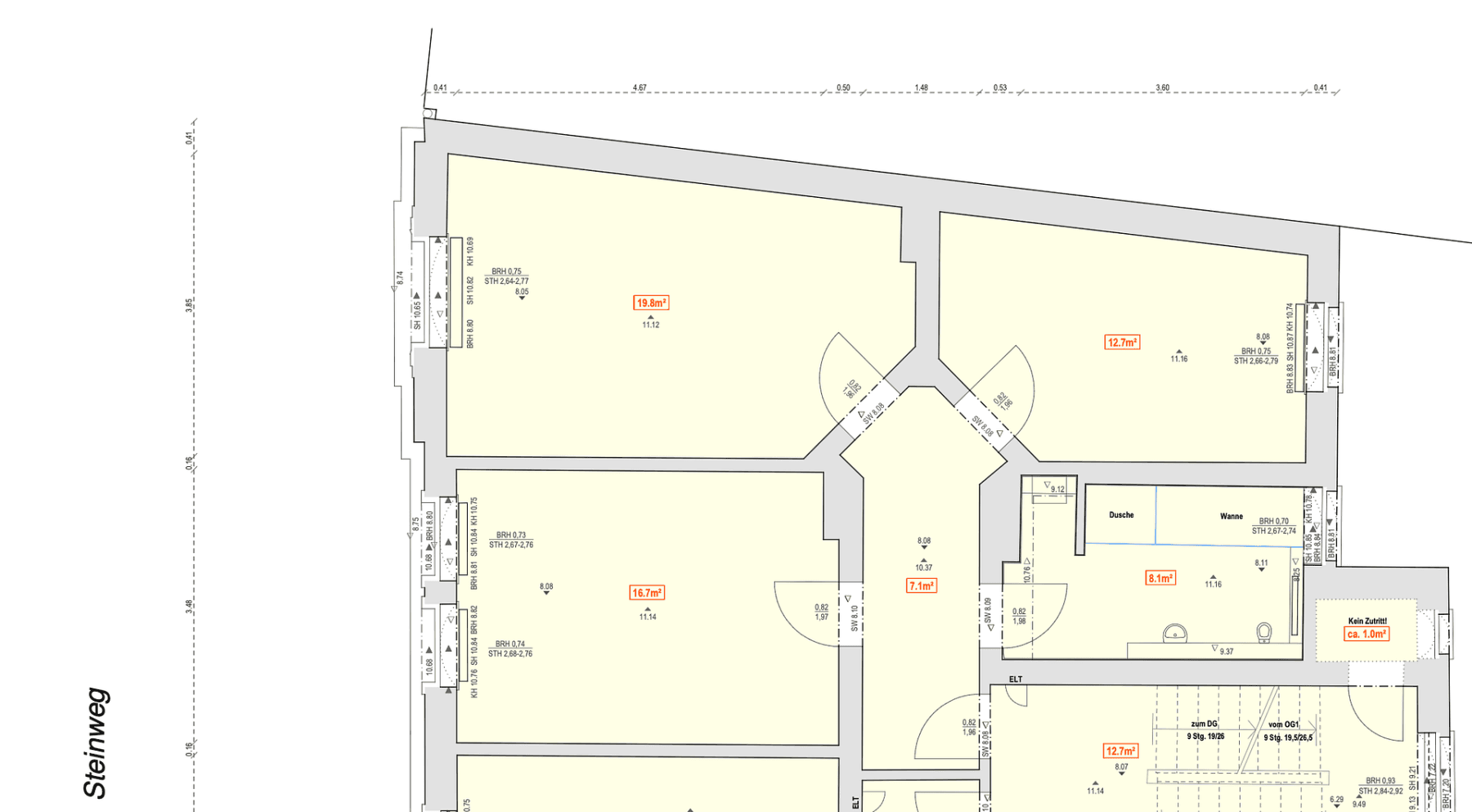
Steinweg 26 Halle, Saale Südliche Innenstadt Sachsen-Anhalt 06110Public transport less than a minute of walking • ParkingThe bright, well-proportioned 3-room apartment (including a living kitchen) is located on the second floor of a well-maintained old building at Steinweg 26 in the southern inner city of Halle (Saale). Covering 69 m², it offers two spacious “sleeping” rooms, a living kitchen, and a daylight bathroom with a bathtub and shower. The rooms are flooded with light and feature high ceilings with classic old-building proportions. Thanks to the clear layout, the apartment is ideal for couples, small families, a two-person shared apartment, or professionals working from home. The building has been regularly maintained, and the apartment is in good condition. A storage space on the middle landing and a parking space for a car are available in the courtyard. Heating is provided via gas-fired central heating.
Steinweg is situated in the popular southern inner city of Halle (Saale) – just a few minutes away from the Old Town. Shops, cafes, restaurants, and cultural facilities are all within walking distance. Public transportation connections are excellent: tram and bus stops are in the immediate vicinity, and the main train station is reachable in about 10 minutes. The location combines urban charm, superb infrastructure, and proximity to recreational areas and sports facilities. The southern inner city is one of Halle’s most sought-after residential areas.
• 69 m² of living space (completely renovated three years ago)
• 2 bright, well-proportioned, individually accessible rooms – suitable for a two-person shared apartment
• Spacious daylight bathroom with a bathtub and shower, with room for a washing machine
• Separate living kitchen with space for a large dining table
• Typical old-building room heights with ceilings of approximately 3.5 meters
• Storage space on the middle landing and, if needed, also in the basement
Optionally, a modern fitted kitchen can be provided by arrangement, or the entire apartment can be rented furnished.
The property is managed by Mover & Shaker GmbH, Leipziger Str. 47, 06108 Halle (Saale). The rental is commission-free.
Property characteristics
| Age | Over 5050 years |
|---|---|
| Condition | After reconstruction |
| Floor | 2. floor out of 2 |
| Usable area | 69 m² |
| Available from | 15/11/2025 |
|---|---|
| Layout | 3+1 |
| Listing ID | 963472 |
| Price per unit | €10 / m2 |
What does this listing have to offer?
| Parking |
| MHD 0 minutes on foot |
What you will find nearby
Still looking for the right one?
Set up a watchdog. You will receive a summary of your customized offers 1 time a day by email. With the Premium profile, you have 5 watchdogs at your fingertips and when something comes up, they notify you immediately.















