
Flat to rent 2+kk • 43 m²Podjavorinské, Prague - Chodov
Podjavorinské, Prague - ChodovPublic transport 2 minutes of walking • EquippedInterested?
Communicate all private owners and save CZK 18,490 on commissions.
Vzhledem k vysokému zájmu o námi inzerované nemovitosti žádáme všechny vážné zájemce o prohlídky, aby nás pro rychlý a efektivní postup kontaktovali výhradně skrze formulář níže. Následně Vám emailem zašleme krátký osobní dotazník, ve kterém bude třeba uvést několik základních informací. Po vyplnění tohoto dotazníku obdržíte informaci o dalším postupu.
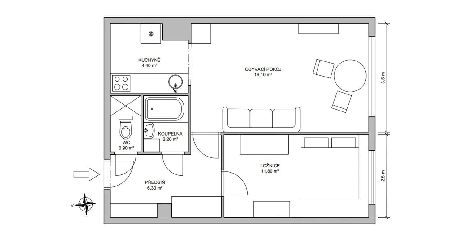
Nabízíme podnájem světlého bytu 2+kk, o celkové výměře 43 m², ve 3. nadzemním podlaží zrekonstruovaného panelového domu s výtahem, na Praze 4 – Chodov. Byt bude po dohodě k dispozici buď vybavený, nebo nezařízený, což Vám umožní přizpůsobit si interiér podle vlastních představ. Částečně zrekonstruovaná kuchyň nabízí kuchyňskou linku včetně základních spotřebičů, jako je lednice, sporák a digestoř. Koupelna disponuje vanou se sprchovým závěsem, zatímco toaleta je pro větší komfort oddělená. V bytě jsou navíc nově položeny laminátové podlahy. Součástí pronájmu je také uzamykatelná sklepní kóje (1,5 m²) v přízemí domu, která Vám poskytne dostatek úložného prostoru.
Nabídka je určena k dlouhodobému podnájmu a je po domluvě k nastěhování od 23.11.2025.
Dům se nachází jen 3 minuty pěšky od stanice metra C - Háje a v těsné blízkosti zeleně Centrálního parku. V docházkové vzdálenosti najdete také oblíbený lesopark a Hostivařskou přehradu, zatímco na opačné straně Vás přivítá krásný Milíčovský les. Veškerá občanská vybavenost je pohodlně dostupná pěšky – supermarkety Albert, Penny, Lidl, OC Háje, restaurace, školy, školky i poliklinika. Navíc jen 3 minuty od domu probíhají dvakrát týdně farmářské trhy, kde můžete nakoupit čerstvé lokální produkty.
Poznámka k ceně: Poplatky za služby vč. pojištění domácnosti a odpovědnosti činí 2.149 Kč/měsíc + elektřina a plyn, které budou převedeny na nájemníka. Při podpisu smlouvy nájemník hradí první nájemné, dále rezervaci a vratnou kauci ve výši jedné měsíční platby.
Pokud se nemůžete na prohlídku bytu dostavit osobně, je možné domluvit prohlídku formou videohovoru. V reakci na tento inzerát o sobě prosím uvádějte alespoň základní informace (počet osob, zaměstnání, od kdy hledáte bydlení, zda máte domácího mazlíčka). Děkujeme.
Property characteristics
| Available from | 23/11/2025 |
|---|---|
| Building construction | Precast concrete |
| Fully furnished | Fully furnished |
| Listing ID | 961783 |
| EPC | C - Economical |
| Usable area | 43 m² |
| Price per unit | CZK 430 / m2 |
| Condition | Very good |
|---|---|
| Layout | 2+kk |
| Floor | 2. floor |
| Ownership | Personal |
| Sewage | Public sewage |
| Water | From a public source |
What does this listing have to offer?
| MHD 2 minutes on foot |
What you will find nearby
Interested?
Communicate all private owners and save CZK 18,490 on commissions.
Still looking for the right one?
Set up a watchdog. You will receive a summary of your customized offers 1 time a day by email. With the Premium profile, you have 5 watchdogs at your fingertips and when something comes up, they notify you immediately.



















