House for sale • 182 m² without real estate, North Rhine-Westphalia
, North Rhine-WestphaliaPublic transport 3 minutes of walking • ParkingFREE LIFE – LUXURY REAL ESTATE presents to you this unique, imposing villa with approximately 182 m² of living space in a central and popular location in Dülmen.
The property for sale is the only residential building representing the Neoclassicism era in Dülmen. It has been used to this day as an impressive and very well-maintained residence and is even a listed historic monument.
Even the exterior of the house impresses with its clear, structured lines and numerous details.
After the immense war damages in the city area of Dülmen, the house built in 1918/20 is, beyond its architectural significance, the only building representing the Neoclassicism era in Dülmen. It is therefore also of urban historical importance.
Characteristic features:
Single-storey rendered solid construction on an almost square floor plan. Surrounding facade structure with fluted Doric pilasters, above which runs an entablature with a large-scale dentil frieze. Windows with profiled reveals, window sills with incorporated balusters. In the mansard roof facing the street, a three-axial transverse structure with a triangular gable between two smaller, flat-topped roof sections; the middle one on the left side altered and enlarged. At the rear left corner, a polygonal bay extension.
This stately house was built in massive construction with a full basement on its own plot of approximately 767 m².
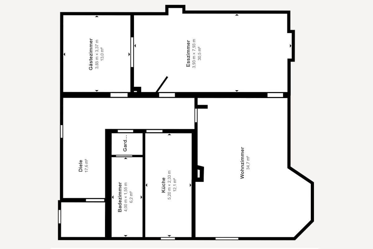
On the ground floor of this beautiful house there is an approximately 35 m² living room with access to the west-facing terrace, an adjacent approximately 30 m² dining room, a reception room, a kitchen with a high-quality, stylish fitted kitchen and access to the west-facing terrace, a daylight bathroom modernized about 5 years ago with an open shower, an entrance hall with a cloakroom and staircase, as well as a storage room with secondary exit to the carport and access to the basement.
The floors in the living areas on the ground floor are fitted with nearly new parquet, the kitchen has granite surfaces, and the bathroom is equipped with high-quality tiling.
On the upper floor there is approximately a 26 m² additional living room, an office, two bedrooms, a utility room with a separate sink, a daylight bathroom modernized about 10 years ago with a walk-in shower, and the entrance hall.
Between the ground floor and the upper floor, a modern, daylight guest WC is located.
The large attic of the house is developable, and the basement offers plenty of additional usable space.
A fiber optic connection is already available in the house.
There is a long driveway and a carport available for cars.
The park-like, very well-maintained property invites you to enjoy many pleasant hours outdoors.
The annual property charges amount to €1,285.87.
Would you like to view the property immediately?
Then please send us an inquiry via the contact form or by email at info@immobilienmakler12.de, and we will contact you promptly.
Written inquiries are processed significantly faster than telephone inquiries!
NO COMMISSION FOR THE BUYER
The representative house is located in a popular, central area of Dülmen, in the immediate vicinity of the Schlosspark.
The city center with its shopping and leisure options, restaurants, doctors, and pharmacies is within walking distance.
Public transport bus stops are also within walking distance.
There is also good access to the A43, and thus to the cities of the Ruhr area and Münsterland.
Dülmen is a medium-sized county town in the North Rhine-Westphalian district of Coesfeld, located between Münster and the Ruhr area. With its approximately 46,500 inhabitants, it has the status of a medium-sized city and boasts an extensive network of cycling routes, making it a popular excursion destination, especially for those from the nearby Ruhr area. The property is located near the center; you only need a 5-minute drive to reach the downtown area with its diverse shopping opportunities and varied eateries.
- Unique, imposing villa
- Stately historic monument
- Built in 1918-1920
- Massive construction
- Full basement
- Approximately 182 m² of living space
- Approximately 767 m² private plot
- Large west-facing terrace
- High-quality fitted kitchen approximately 6 years old
- Carport
- Floors with parquet, granite, and high-quality tiling
- Two modern daylight shower bathrooms
- One modern designed daylight guest WC
- Additional usable space in the attic and basement
- Fiber optic connection
- Carport
- West-facing terrace
- Park-like designed, very well-maintained property
This is a non-binding offer from
FREIESLEBEN GmbH,
Steinstraße 14
45657 Recklinghausen
Tel.: 02361 - 90 61 030
Website: www.immobilienmakler12.de
Email: info@immobilienmakler12.de
You can reach us by phone MONDAY to SUNDAY from 7:00 a.m. to 10:00 p.m. On weekends, we additionally offer our services for property valuations, property viewings, and personal consultations.
Regarding the property, we rely on the information provided by the owners and authorities. No liability can be assumed for the accuracy and completeness of the details provided. Furthermore, no guarantee can be given for the property, nor can we assume liability for the liquidity of the contracting parties.
Would you like your property to be marketed professionally as well?
- Use our free service and have the current value of your property estimated by one of our real estate specialists.
- Optimize the sales opportunities of your property by having a marketing plan tailored specifically to your property created.
- Take advantage of our excellent nationwide network to quickly connect you with potential buyers. Hundreds of interested parties are waiting for you!
Call us, we look forward to hearing from you!
Central Münsterland: Tel.: 0251 - 39 444 998
Central Ruhr Area: Tel.: 0234 - 92 56 98 00
Property characteristics
| Age | Over 5050 years |
|---|---|
| Condition | Good |
| Usable area | 182 m² |
| Total floors | 2 |
| Available from | 02/11/2025 |
|---|---|
| Listing ID | 953993 |
| Land space | 767 m² |
| Price per unit | €3,846 / m2 |
What does this listing have to offer?
| Basement | |
| MHD 3 minutes on foot |
| Parking | |
| Terrace |
What you will find nearby
Still looking for the right one?
Set up a watchdog. You will receive a summary of your customized offers 1 time a day by email. With the Premium profile, you have 5 watchdogs at your fingertips and when something comes up, they notify you immediately.




































